Trilocale in Via Ormea, 7 a Torino
vendita Appartamento Torino
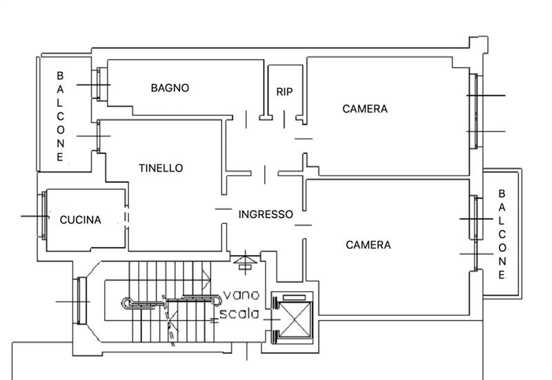
VIA ORMEA
A due passi dal Parco del Valentino e in prossimità delle principali vie del centro, proponiamo in vendita luminoso appartamento ristrutturato situato in uno stabile signorile con servizio di portineria.
L’immobile, posto in una delle zone più richieste e residenziali di Torino, si compone di:
ingresso, due camere luminose, cucina abitabile con terrazzino, bagno finestrato, ripostiglio, balcone e cantina di pertinenza la piano interrato.
Riscaldamento centralizzato con termovalvole.
Porta blindata.
Videocitofono.
Servizio di portineria.
Doppia esposizione est-ovest.
LIBERO DA MAGGIO 2026.
Posizione strategica a pochi metri dal Parco del Valentino e a circa 10 minuti a piedi dalla stazione Metro Porta Nuova.
Zona ben servita da mezzi pubblici, stazione, negozi, scuole, università, ristoranti.
Per informazioni rivolgersi a Gabetti agenzia CENTROPO 011.836116 Le informazioni contenute nell’annuncio non costituiscono elemento contrattuale. VALUTAZIONI GRATUITE E RISERVATE FEDELI ALLE CONDIZIONI DI MERCATO! MONETY: SERVIZIO DI MUTUI E SOLUZIONI FINANZIARIE SU MISURA IN AGENZIA
Informazioni generali
Accessori
Efficienza energetica
Richiesta informazioni all'agenzia
Richiedi informazioni all'agenzia
