Appartamento indipendente in ottime condizioni a Monfumo
Rif. BL062
VENDESI stupendo appartamento di 104 mq, degli anni 2000, ben rifinito e arredato con gusto, al piano terra in un contesto con poche unità abitative, immerso nella natura ma comunque sono facilmente raggiungibili i principali servizi.
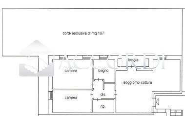
Vi è un ingresso principale comune e un ingresso autonomo dall'ampio giardino privato di 107 mq.
All'ingresso dell'appartamento si trova un ambiente open space con cucina/soggiorno, si raggiunge poi un disimpegno nella zona notte dove si trova un angolo spazioso con lavatrice e asciugatrice, si apprezzano poi due camere (una singola e una matrimoniale), uno spazioso sgabuzzino e un moderno bagno con doccia.
Scendendo al piano interrato di trova un ampio garage, adiacente al quale vi è un vano dove si può realizzare una lavanderia (ci sono gli attacchi per lavatrice e per realizzare un lavabo) o una cantina a seconda delle esigenze.
Si intende precisare che gli indirizzi presenti negli annunci non sono identificativi dell'ubicazione precisa dell'immobile, danno un riferimento solo generico della zona al cliente che ricerca, al fine di tutelare la privacy e riservatezza del venditore. Per visionare l'immobile o per ricevere ulteriori informazioni contattateci: 0423 1904721. - Le nostre sedi : Montebelluna (TV) - Maser (TV) - Conegliano (TV) - Jesolo (VE).
Dove si trova
Informazioni generali
Accessori
Efficienza energetica
Video
Richiesta informazioni all'agenzia
Richiedi informazioni all'agenzia
