Appartamento in Via Barbiero a Mogliano Veneto
Appartamento in Vendita di 155 mq a Mogliano Veneto
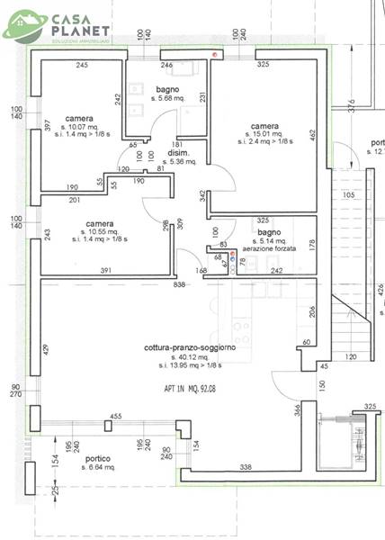
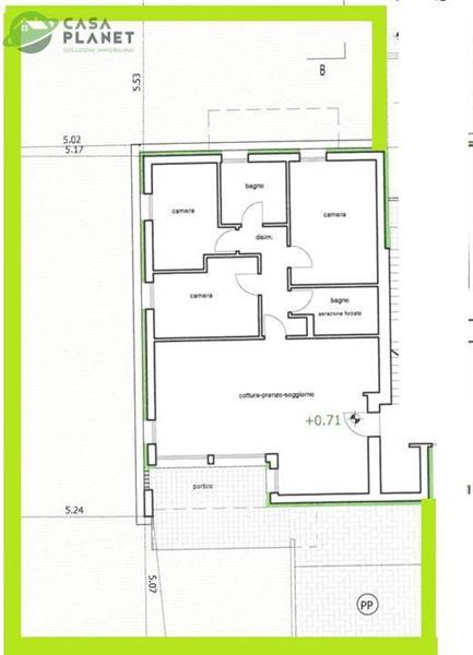
Appartamento di nuova costruzione a Mogliano Veneto, tutti con tre camere, belle terrazze abitabili o scoperto di proprietà .Proponiamo in vendita IN ESCLUSIVA appartamento al piano terra con scoperto di proprietà in contesto signorile di poche unità . Attorniato su tre lati dal giardino di oltre 200 mq., l'appartamento è suddiviso tra una zona giorno di oltre 40 mq con cucina a vista ed un bagno con doccia e la zona notte con tre spaziose camere, una matrimoniale di 15 mq. e due singole di 10 mq., oltre al secondo bagno. Nel disimpegno è stata ricavata una comoda nicchia con la predisposizione per ospitare lavatrice ed eventuale asciugatrice. Dal soggiorno attraverso una grande portafinestra si accede un comodo e spazioso portico, per vivere la stagione estiva. L'appartamento al piano terra è di prossima realizzazione e la consegna è prevista per aprile 2026.La realizzazione è effettuata nel rispetto delle più innovative tecniche di costruzione in materia di sicurezza ed ecosostenibilità e sarà dotato di tutti i comfort attualmente disponibili sul mercato, come il riscaldamento a pavimento, Impianto di pompa di calore caldo/freddo con split in ogni locale, impianto d'allarme preliminare, impianto fotovoltaico da 4.5 KW, impianto di ventilazione meccanica controllata, videocitofono, pavimenti in gres porcellanato o in listoni di legno a scelta del cliente, serramenti termici/acustici con bassissima trasmittanza, cappotto esterno.Classe energetica di progetto A4.Per informazioni su questo appartamento, fissare un appuntamento in agenzia Casa Planet di Mogliano Veneto al n. 0418940162 e chiedere del rif. CP229-1N
