Attico in nuova costruzione a Asolo
Rif. AA303 ATTICO CON VISTA SULLA ROCCA.
ASOLO loc. CASELLA: Esclusivo attico inserito in residence di sole 5 unità abitative in corso di costruzione a pochi minuti dai principali servizi.
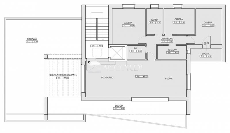
Ingresso, zona giorno di oltre 43 Mq con ampie vetrate, disimpegno, 3 camere da letto (camera matrimoniale, camera doppia con terrazza e camera singola) bagno, bagno/lavanderia e un ripostiglio. Terrazza su due lati di oltre 100 Mq. Al piano interrato 48 Mq. di garage da adibire anche ad area magazzino/ripostiglio.
Riscaldamento e raffrescamento radiante a pavimento, impianto in pompa di calore condensata ad aria esterna, panelli fotovoltaici e predisposizione per impianto antintrusione perimetrale. Palazzina dotata di ascensore elettrico.
Particolare attenzione è stata prestata per la tipologia costruttiva volta a garantire un elevato confort ambientale e a ridurre le spese per l'esercizio e la gestione degli impianti tecnologici che, al tempo stesso, permetteranno di raggiungere elevati standard di efficenza energetica ( classe Energentica A4).
Ampia possibilità di personalizzare le finiture interne. CONTATTACI PER MAGGIORI INFORMAZIONI.
LE IMMAGINI PRESENTI SONO UN'INDICAZIONE FOTOGRAFICA SENZA ALCUN VINCOLO REALIZZATIVO.
Si intende precisare che gli indirizzi presenti negli annunci non sono identificativi dell'ubicazione precisa dell'immobile, danno un riferimento solo generico della zona al cliente che ricerca, al fine di tutelare la privacy e riservatezza del venditore. Per visionare l'immobile o per ricevere ulteriori informazioni contattateci: 0423 1904721.
Le nostre sedi : Montebelluna (TV) -- Maser (TV) - Conegliano (TV) - Jesolo (VE)
Dove si trova
Informazioni generali
Accessori
Efficienza energetica
Video
Richiesta informazioni all'agenzia
Richiedi informazioni all'agenzia
