Bifamiliare abitabile a Nervesa della Battaglia
RIF.PS99
NERVESA DELLA BATTAGLIA, Frazione - Porzione di binata con agibilità del 2000, ai piedi del Montello, comoda ai principali servizi e dalle metrature interessanti.
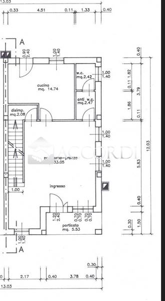
PIANO TERRA con soggiorno dotato di camino, cucina abitabile, bagno di servizio con lavanderia;
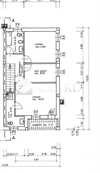
PIANO PRIMO con due matrimoniali di cui, la piu' grande con bagno padronale e poggiolo, una singola, altro servizio completo;
INTERRATO con ampio garage, centrale termica e cantina.
Il giardino, sui tre lati dell'abitazione, è di circa 300 mq.
L'immobile viene venduto con impianto fotovoltaico recente, impianto di allarme, impianto d'irrigazione, cucina ed arredo bagno presenti ( se graditi ), caminetto.
OTTIMA SOLUZIONE PER FAMIGLIE.
Si intende precisare che gli indirizzi presenti negli annunci non sono identificativi dell'ubicazione precisa dell'immobile, danno un riferimento solo generico della zona al cliente che ricerca, al fine di tutelare la privacy e riservatezza del venditore. Per visionare l'immobile o per ricevere ulteriori informazioni contattateci: 0423 1904721. - Le nostre sedi : Montebelluna (TV) - Maser (TV) - Conegliano (TV) - Villorba (TV) - Jesolo (VE).
Dove si trova
Informazioni generali
Accessori
Efficienza energetica
Video
Richiesta informazioni all'agenzia
Richiedi informazioni all'agenzia
