Casa semi indipendente in Candelu' a Maserada Sul Piave
210 m2
8 vani
4 camere
3 bagni
box
€ 220.000
Casa semi indipendente in Vendita di 210 mq a Maserada sul Piave
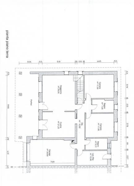
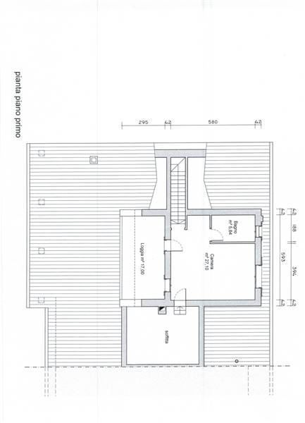
VENDESI BIVILLA di nuova costruzione allo stato grezzo avanzato composta da ingresso, soggiorno/sala da pranzo, cucina, 3 camere matrimoniali, 1 camera singola, 3 bagni, lavanderia, terrazzo e portico, magazzino, garage e posto auto esterno. Giardino privato 800 mq. L'immobile è in zona residenziale e servita. Per maggiori informazioni contattare l'agenzia
Informazioni generali
46V
210 m2
8 locali
€ 220.000
Vendita
Casa semi indipendente
Maserada Sul Piave
CANDELU'
Libero
2016
21/04/2017
Accessori
3
4
Abitabile
800 mq
si
si
si
Richiesta informazioni all'agenzia
Richiedi informazioni all'agenzia
