Casa singola in Via Oberdan a Mogliano Veneto
Casa singola in Vendita di 180 mq a Mogliano Veneto
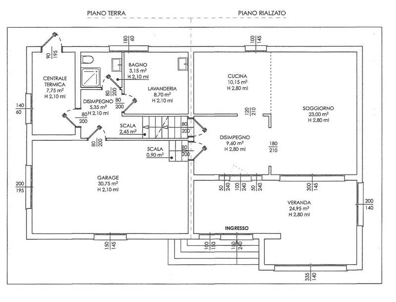
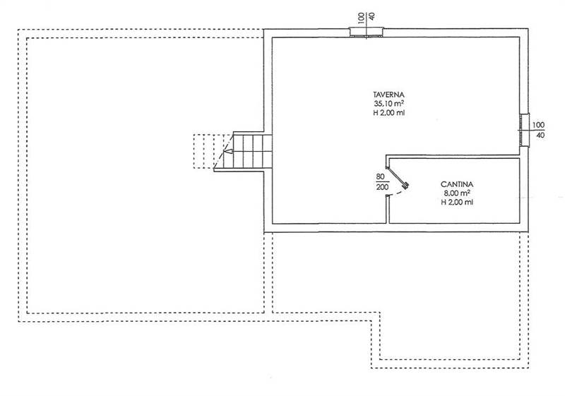
Proponiamo in esclusiva a Mogliano Veneto casa indipendente con ampi spazi abitativi.Con caldaia a condensazione appena installata, vetrocamera nuovi in PVC bianchi con zanzariere e tapparelle nuove, aria condizionata, casa indipendente disposta su livelli sfalsati. Allacciamenti alla rete gas nuovi, tetto con guaina rifatto 2006, grondaie ripristinate, fotovoltaico 6 KW con inverter e batterie di accumulo, pannelli solari. Con cappotto esterno su tre lati. Solo da svecchiare.Al piano rialzato, bella veranda con stufa a pellet, ingresso all'abitazione, ampio soggiorno con zona pranzo e cucina a vista.Al piano notte, tre ampie camere e bagno di 8 mq.Completa l'immobile al piano terra un bel garage di 30 mq., con c.t. bagno, e lavanderia, e al piano seminterrato bella taverna con caminetto, con cantina.Scoperto di circa 1300 mq. Appena realizzato cappotto esterno.Per informazioni o visite all'immobile chiamare agenzia Casa Planet di Mogliano Veneto al numero 0418940162 e chiedere del rif. CP004
