Locale commerciale in nuova costruzione a Conegliano
vendita Locale Commerciale Conegliano
Se sei alla ricerca di un'ottima opportunità commerciale nel cuore di Conegliano (TV), abbiamo la soluzione perfetta per te. Proponiamo in vendita un'attività situata in una zona semicentrale e strategica, precisamente in Via Cesare Battisti, n. 5/d, una delle vie più conosciute e facilmente accessibili del comune. Questo immobile, ampio e versatile, è ideale per molteplici attività commerciali grazie alla sua distribuzione interna ben studiata e alla sua generosa superficie totale di 199 mq.
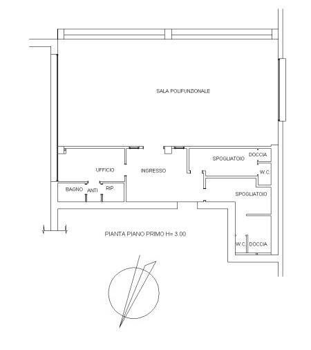
All'interno dell'immobile troverai un comodo ingresso che conduce a un ufficio riservato, perfetto per la gestione delle tue attività quotidiane. Sono inoltre presenti un antibagno, un ripostiglio per ottimizzare lo spazio di archiviazione, e un bagno completo, il tutto pensato per garantire funzionalità e comodità. La struttura include anche due spogliatoi dotati di bagno e doccia, ideali per accogliere i dipendenti o eventuali clienti. Il vero punto di forza è la spaziosa sala polifunzionale, che può essere adattata a svariate esigenze, dalle riunioni di lavoro a eventi o attività specifiche del tuo settore.
L'immobile si presenta in buone condizioni sia dal punto di vista d'uso che di manutenzione, pronto per essere utilizzato senza necessità di interventi significativi. Non perdere l’occasione di investire in una posizione privilegiata, in una proprietà che offre spazi ben organizzati e la versatilità necessaria per sviluppare il tuo progetto commerciale. Contattaci per maggiori informazioni o per organizzare una visita!
