Quadrilocale in ottime condizioni a Asolo
Rif. BL3 APPARTAMENTO BILIVELLO CON 3 CAMERE
ASOLO frazione: Su palazzina realizzata agli inizi del 2000 proponiamo meraviglioso appartamento BILIVELLO ottimamente rifinito in classe A1.
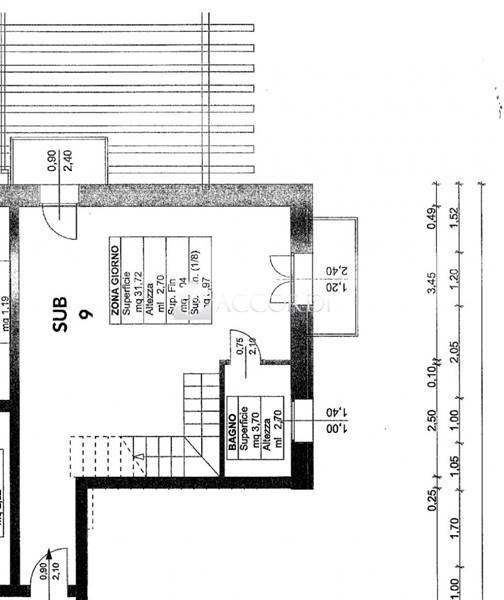
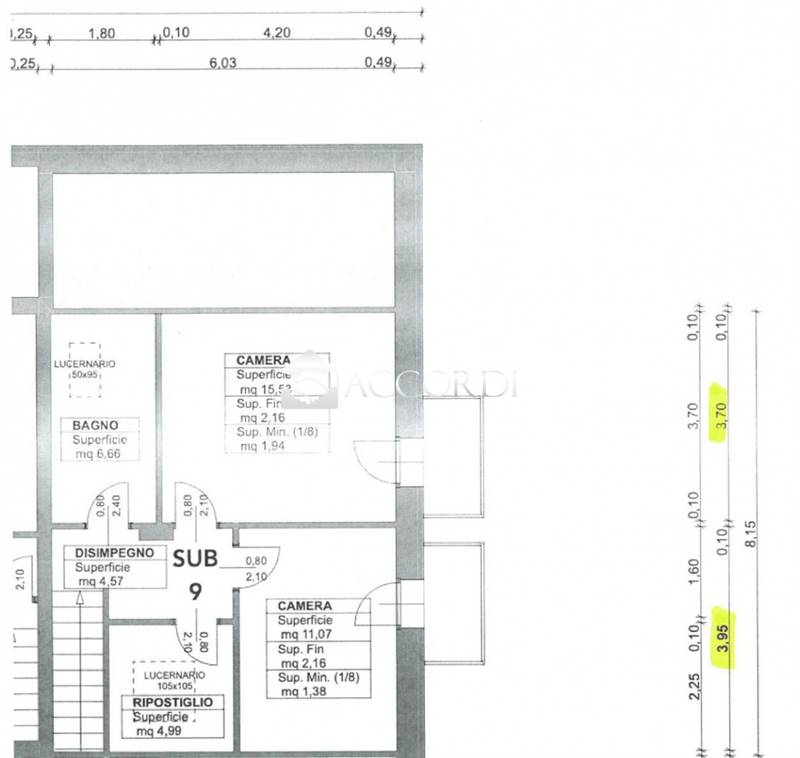
Ingresso, ampia zona giorno open space di oltre 30 Mq con due terrazzi e un bagno, il tutto al piano primo, due camere matrimoniali, locale pluriuso finestrato che può essere utilizzato come terza camera, bagno (con velux apribile) tutto al secondo piano mansardato. Nell'interrato ampio garage doppio.
Completano l'appartamento: condizionatore, pavimento in legno al secondo piano. L'immobile è stato oggetto di "super bonus 110%" e quindi molto ben coibentato sotto il profilo termico, con caldaia e serramenti con vetrocamera nuovi, tetto rifatto nuovo e isolato come pure il cappotto appena fatto.
L'immobile è tenuto in ottime condizioni. Venduto parzialmente arredato. Abitabile fin da subito.
Esposto su 2 lati ( nord/est) MAGGIORI DETTAGLI IN AGENZIA.
Si intende precisare che gli indirizzi presenti negli annunci non sono identificativi dell'ubicazione precisa dell'immobile, danno un riferimento solo generico della zona al cliente che ricerca, al fine di tutelare la privacy e riservatezza del venditore.
Per visionare l'immobile o per ricevere ulteriori informazioni contattateci: 0423 1904721.
Le nostre sedi : Montebelluna (TV) - Maser (TV) - Conegliano (TV) - Jesolo (VE).
Dove si trova
Informazioni generali
Accessori
Efficienza energetica
Richiesta informazioni all'agenzia
Richiedi informazioni all'agenzia
