Quadrilocale in nuova costruzione a Asolo
Rif. AA325A - NUOVO APPARTAMENTO CON 3 CAMERE A CASELLA D'ASOLO.
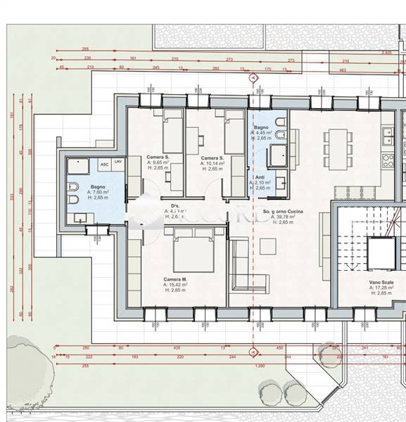
A Casella d'Asolo si trova questo nuovo appartamento in costruzione, al piano terra con giardino. L'immobile è così suddiviso: ingresso, cucina e soggiorno, disimpegno, 2 bagni di cui uno con anti bagno, 3 camere di cui una matrimoniale e due singole. Completano la proprietà lo scoperto privato e il posto auto.
Si intende precisare che gli indirizzi presenti negli annunci non sono identificativi dell'ubicazione precisa dell'immobile, danno un riferimento solo generico della zona al cliente che ricerca, al fine di tutelare la privacy e riservatezza del venditore. Per visionare l'immobile o per ricevere ulteriori informazioni contattateci: 0423 1904721. - Le nostre sedi : Montebelluna (TV) - Maser (TV) - Conegliano (TV) - Jesolo (VE).
Dove si trova
Informazioni generali
Accessori
Efficienza energetica
Planimetria
Richiesta informazioni all'agenzia
Richiedi informazioni all'agenzia
