Quadrilocale in Via Oberdan a Mogliano Veneto
Appartamento in Vendita di 85 mq a Mogliano Veneto
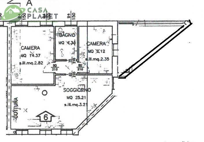
In vendita appartamento due camere alle porte di Mogliano Veneto, di recente costruzione.Del 2004, in contesto gradevole a circa un chilometro dal centro di Mogliano, appartamento al primo e ultimo piano, con ingresso indipendente da bella terrazza condominiale, composto da soggiorno con cucina a vista di 25 mq., disimpegno, bagno finestrato, matrimoniale, singola, con accesso alla bella terrazza esposta a sud.Completano l'immobile un garage al piano interrato ed un posto auto di proprietà .L'appartamento ha portoncino blindato, vetrocamera riscaldamento autonomo, aria condizionata, videocitofono.Solo da svecchiare e personalizzare. Per informazioni o visite all'immobile, chiamare agenzia Casa Planet di Mogliano Veneto al n. 041-8940162 e chiedere del rif. CP344
