Quadrilocale in Via Olivi, 21 a Treviso
vendita Appartamento Treviso
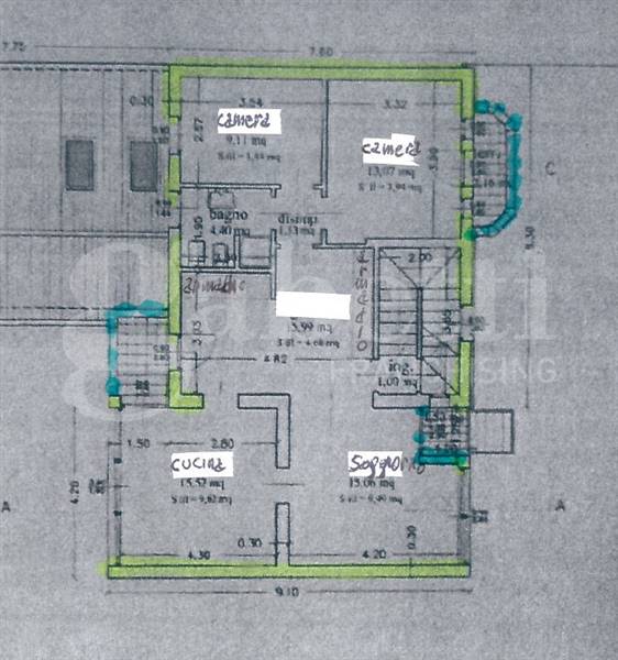
Appartamento ad uso abitativo con 4 locali e 1 bagno, situato in zona Tribunale di Treviso. Con una superficie di 85 mq, questo immobile offre comfort e spazio per tutta la famiglia. Costruito nel 2000, composto di ingresso, soggiorno, cucina abitabile, disimpegno, zona armadi, due camere, un bagno; l'appartamento vanta un videocitofono, impianto di riscaldamento autonomo e climatizzazione, garantendo il massimo comfort in ogni stagione. Le condizioni interne sono buone, con serramenti in noce nazionale e doppi vetri che assicurano un'ottima insonorizzazione e isolamento termico. L'appartamento dispone di un balcone e un posto auto. L'esposizione quadrupla garantisce luminosità in ogni ambiente. Libero da subito, questo immobile è perfetto per chi cerca la combinazione perfetta tra comodità e stile di vita. Contattaci per organizzare una visita! Disponibile da subito.
Informazioni generali
Accessori
Efficienza energetica
Richiesta informazioni all'agenzia
Richiedi informazioni all'agenzia
