Terreno edificabile a Cornuda
Rif: DT270 - LOTTO EDIFICABILE IN ZONA MOLTO PIACEVOLE.
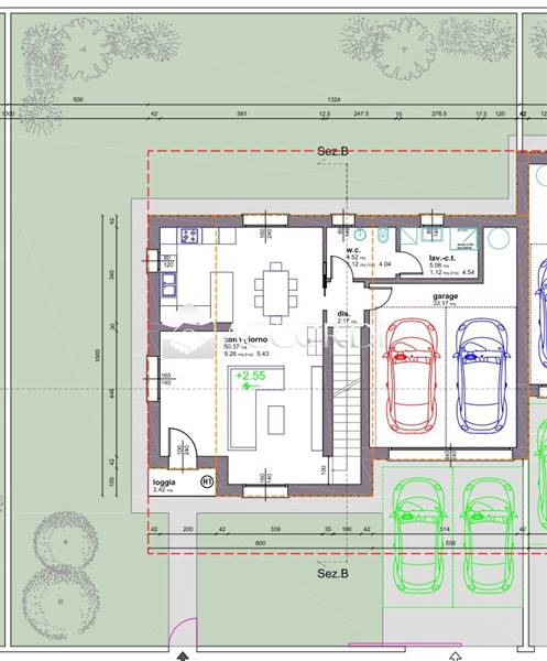
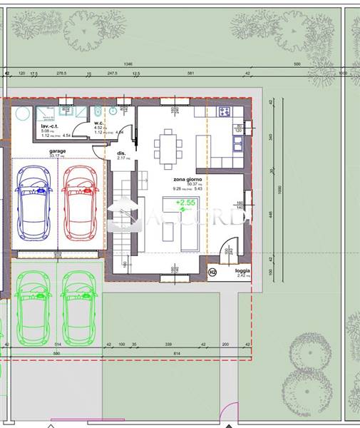
In zona limitrofa al centro, ma lontana dai rumori e dal traffico..... c'è questo lotto edificabile di 600 mq con una cubatura edificabile di 900 mc, ideale per realizzare una singola od una bifamiliare. Prezzo interessante.
Si intende precisare che gli indirizzi presenti negli annunci non sono identificativi dell'ubicazione precisa dell'immobile, danno un riferimento solo generico della zona al cliente che ricerca, al fine di tutelare la privacy e riservatezza del venditore. Le Nostri sedi : MONTEBELLUNA, MASER, CONEGLIANO, PIEVE DI SOLIGO, VILLORBA e JESOLO.
Dove si trova
Informazioni generali
Richiesta informazioni all'agenzia
Richiedi informazioni all'agenzia
