Villa a schiera da ristrutturare a San Zenone Degli Ezzelini
250 m2
6 vani
€ 65.000
vendita Villa a schiera San Zenone degli Ezzelini
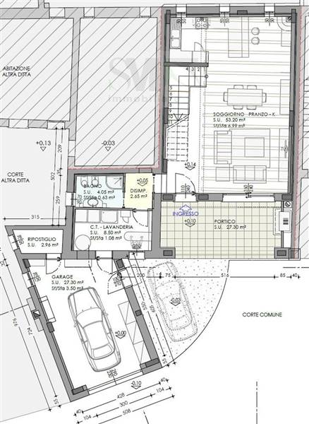
In comune di San Zenone, in strada chiusa al traffico, proponiamo rustico degli anni 60. Caratterizzato dalla tranquillità della zona in cui si trova, questa abitazione in corte comune ma con garage e anche posto auto esterno riservato, vanta delle metrature generose ma non esagerate. Ottima occasione con progetto già approvato per la ristrutturazione! Contattaci per maggiori info e fissare una visita per vedere di persona la potenzialità di questa offerta!
Informazioni generali
6956
250 m2
6 locali
€ 65.000
Vendita
Villa a schiera
San Zenone Degli Ezzelini
1960
20/01/2025
Accessori
Da ristrutturare
si
Richiesta informazioni all'agenzia
Richiedi informazioni all'agenzia
SM Immobiliare
viale pio x 49
36061
Bassano del Grappa
(VI)
P.IVA: 03828000244
