Villa in Via della Roggia, 6 a Pavia di Udine
vendita Villa singola Pavia di Udine
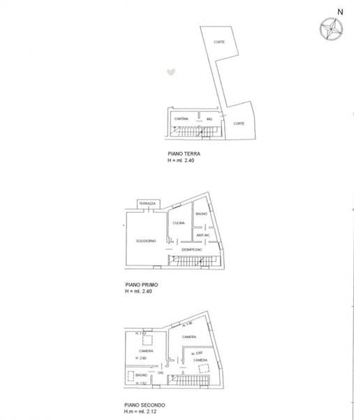
A Risano, a soli 10 km dal centro di Udine, vendiamo in esclusiva una splendida casa completamente ristrutturata nel 2012 disposta su 3 livelli fuori terra.
La casa accostata, da un lato, dopo essere entrati nel cancello elettrico e parcheggiato nella corte di proprietà, si sviluppa con ingresso al piano terra e comoda cantina, al primo piano troviamo un ampio e luminoso soggiorno pranzo con terrazzino, la cucina abitabile e un ampio bagno con disimpegno. Al piano superiore, mansardato, le tre camere da letto e il secondo bagno finestrato.
L'immobile, completamente ristrutturato e finito con gusto e regola d'arte, viene venduto completamente e finemente arredato come da foto. La caldaia a condensazione e la ristrutturazione hanno portato la classe energetica in B. Successivamente alla certificazione è stato aggiunto anche il condizionamento.
Una vera opportunità per chi cerca una bella casa indipendente già pronta ed arredata.
