Bifamiliare in Via San Francesco a Gerenzano
204 m2
3 vani
2 bagni
box
giardino
€ 340.000
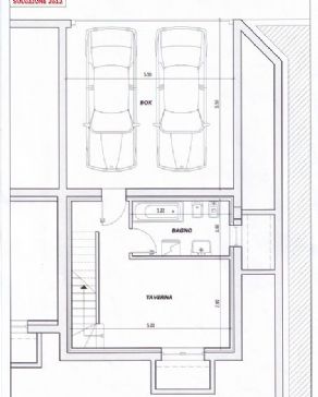
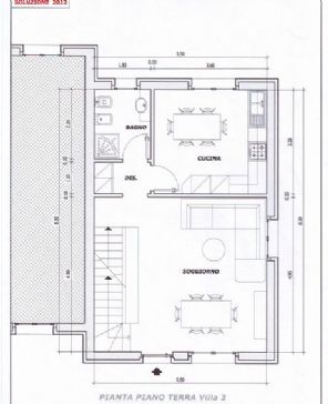
PORZIONE DI BIFAMILIARE DI NUOVA REALIZZAZIONE NEL RISPETTO DEL RISPARMIO ENEGETICO IN CLASSE B COMPOSTA DA: P.I. TAVERNA, BAGNO, BOX DOPPIO IN LARGHEZZA. CA. 50 MQ. P.T. INGRESSO NEL SOGGIORNO, CUCINA ABITABILE, DISIMPEGNO, BAGNO. MQ. 50 CA. OLTRE GIARDINO SU DUE LATI DI CA. 100 MQ. COMPLESSIVI. P.1° NON MANSARDATO DUE CAMERE E BAGNO MQ. 50 CA. OLTRE BALCONI E TERRAZZO. Euro 340.000,00 RIF. 39N
Dove si trova
45.639679.000745
Informazioni generali
39N
204 m2
3 locali
€ 340.000
Vendita
Bifamiliare
Gerenzano
VIA SAN FRANCESCO
18/09/2012
Accessori
2
Autonomo
Nuova costruzione
Abitabile
si
Efficienza energetica
B
B
Richiesta informazioni all'agenzia
Richiedi informazioni all'agenzia
LINEA 4 IMMOBILIARE Cislago
Via Cesare Battisti 1088
21040
Cislago
(VA)
P.IVA: 01878110129
