Capannone industriale in ottime condizioni in zona Sacconago a Busto Arsizio
Capannone industriale in Vendita di 7300 mq a Busto Arsizio
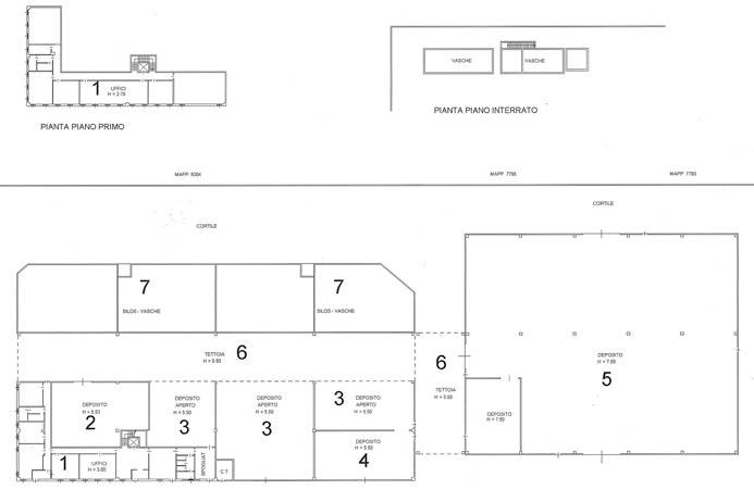
- BUSTO ARSIZIOImportante area artigianale di mq 12.000 dotata di mq 5.000 di edifici ad uso artigianale, magazzini e uffici con possibilità di ampliamento fino a 7.300 mq con altezza massima 18 metri.Immobile situato all'interno di area industriale dotata di ampia viabilità distante pochi minuti dallo svincolo autostradale dei laghi E62 e dall'aeroporto Milano Malpensa, distante soli 30 km da Milano e da Varese e dagli svincoli autostradali A4 Torino - Trieste.L'area consente l'edificazione con indice di copertura massimo pari al 60% della superficie fondiaria, ovvero circa 7.300 mq con altezza massima degli edifici di metri 18.Le destinazioni d'uso consentite sono artigianali, industriali, esercizi pubblici e attività di servizio alle funzioni produttive, abitazioni di servizio, distributori di carburante.Attualmente nell'area sono presenti 2 fabbricati, un'edificio composto da uffici al piano terreno e primo oltre area produttiva per un totale di mq 2000 circa con altezza di metri 5,5, un secondo edificio ad uso magazzino/produttivo di mq 2.500 circa con altezze interne di 7,5 metri ed una tettoia di mq 400.Vi è la possibilità di ampliamento dell'estitente (con eventuale aumento di altezza) per mq 2.300 circa oppure la totale demolizione e nuova costruzione con i parametri edilizi vigenti.L'area esterna è totalmente pavimentata e dotata di svariati accessi indipendenti dalla strada pubblica per comodi ingressi e uscite di auto mezzi.Non sono necessarie bonifiche del terreno.⬠3.200.000,00CLASSE ENERGETICA: F 868,41 [Kwh/m2a]Vai all'annuncio: https://www.studio-valle.com/it/busto-arsizio/STUDIO IMMOBILIARE VALLEFlaminia S.r.l.Real estate and investments24121 Bergamo - ItalyV.le Vitt. Emanuele II n. 65tel +39 035 231588WhatsApp: +39 3920190070www.studio-valle.cominfo@studio-valle.comFacebook: StudioImmobiliareValleTwitter: ValleRealEstateSkype: Valle-Real-Estate
Dove si trova
Informazioni generali
Accessori
Efficienza energetica
Planimetria
Richiesta informazioni all'agenzia
Richiedi informazioni all'agenzia
