Locale commerciale abitabile a San Dona'Di piave
affitto Locale Commerciale San Donà di Piave
Locale Commerciale in Affitto - Posizione Strategica Centrale a San Dona' di Piave
Canone di Affitto Mensile: euro 3500,00 Superficie: 327 mq
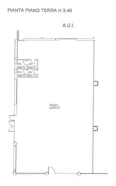
Questa spaziosa e luminosa unita' commerciale, situata al piano terra di un edificio di quattro piani, offre una superficie totale di 327 mq. Il negozio presenta una pianta rettangolare con due lati caratterizzati da vetrine a tutta altezza, garantendo una visibilita' ottimale per attivita' commerciali di vario genere. L'immobile dispone di un'area esterna condominiale dedicata a carico/scarico e parcheggio, rendendo comodo e pratico il movimento dei clienti e delle forniture per le attivita' commerciali.
Posizione Strategica: Situato nel cuore del centro di San Dona' di Piave, lungo la SS 14, questo locale commerciale vanta una posizione centralissima e strategica. Circondato da una vivace attivita' commerciale e una densa presenza di passaggio pedonale e veicolare, l'immobile offre una visibilita' ed un'accessibilita' ottimali per il successo del tuo business.
Non perdere l'opportunita' di far crescere la tua attivita' in uno dei punti nevralgici di San Dona' di Piave. Contattaci ora per organizzare una visita e scoprire tutte le potenzialita' di questo locale commerciale unico nel suo genere!
