Appartamento in Via Villastorta a Portogruaro
vendita Appartamento Portogruaro
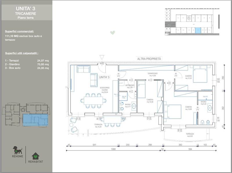
PORTOGRUARO, a pochi passi dal centro in zona residenziale di recente realizzazione proponiamo in vendita NUOVI APPARTAMENTI di diverse metrature composti da luminosa zona giorno con cucina in open space o separata, ampie TERRAZZE ABITABILi, mini, bicamere o tricamere, uno o due BAGNI FINESTRATI. Completa l'appartamento un garage doppio oppure un garage singolo ed un posto auto entrambe le soluzioni già comprese nel prezzo. PREZZI A PARTIRE DA
- 150.000 PER I MINI APPARTAMENTI
- 195.000 PER I BICAMERE
- 290.000 PER I TRICAMERE
I prezzi sono comprensivi dei posti macchina. Esclusi i costi di allacciamento degli impianti.
Ascensore fino al piano -1 dei garage. Riscaldamento a pavimento AUTONOMO, predisposizione impianto di raffrescamento a split, pannelli fotovoltaici per le parti comuni, finiture di ottima qualità.
QUATTRO BUONI MOTIVI PER ACQUISTARE:
1. OTTIME FINITURE 2. ZONA CENTRALE 3. ELEVATO COMFORT ABITATIVO 4. PREZZO SOSTENIBILE
