Bilocale in zona Lido a Venezia
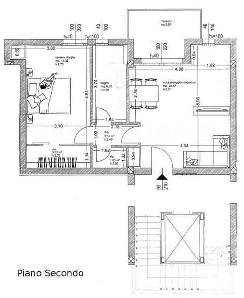
LIDO DI VENEZIA - CA' BIANCA - Nimaan & Partners propone appartamento dotato di ogni comfort al piano secondo in edificio di nuova costruzione ecosostenibile certificato in classe energetica A+ composto da ampio soggiorno con angolo cottura, camera matrimoniale, bagno, ripostigli e terrazzo abitabile. A disposizione con un piccolo sovraprezzo garage al piano interrato e magazzino al piano terra. La palazzina è alimentata da "green energy" solare e fotovoltaico proteggendo l'investimento con una costruzione ad alto livello tecnologico in grado di minimizzare i consumi energetici per un futuro migliore di chi compra e dell'ambiente.
