Bilocale in zona Lido a Venezia
64 m2
2 vani
2 camere
1 bagno
€ 385.000
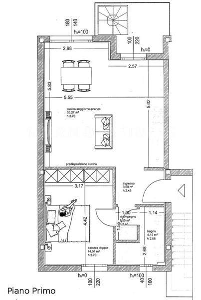
LIDO DI VENEZIA - CA' BIANCA - Nimaan & Partners propone appartamento dotato di ogni comfort al piano primo in edificio di nuova costruzione ecosostenibile certificato in classe energetica A+ composto da ampio soggiorno con angolo cottura, camera matrimoniale, bagno e terrazzo abitabile. A disposizione con un piccolo sovraprezzo garage al piano interrato e magazzino al piano terra. La palazzina è alimentata da "green energy" solare e fotovoltaico proteggendo l'investimento con una costruzione ad alto livello tecnologico in grado di minimizzare i consumi energetici.
Dove si trova
45.3835912.34444
Informazioni generali
93
64 m2
2 locali
€ 385.000
Vendita
Appartamento
Venezia
Lido
2015
01/06/2019
Accessori
1
2
Efficienza energetica
A+
A+
7,37 kwh/m2 anno
