Locale commerciale a Venezia
52 m2
1 bagno
€ 430.000
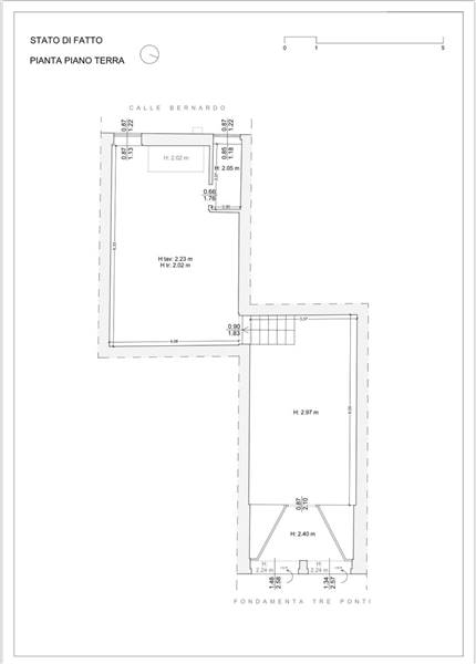
Venezia, sestiere di Santa Croce, zona 3 ponti, Piazzale Roma, a brevissima distanza dalla stazione degli autobus e del garage comunale, in posizione di grande passaggio, negozio con fosse settiche e restauro che verrà portato al grezzo avanzato a cura e spese del proprietario, superficie totale di mq 46, composto da un ampio vano al piano terra con vetrine e un secondo vano con bagno al piano mezzanino, finestrato. Ideale per ogni tipo di attività commerciale e/o ufficio professionale (studio legale, medico, commercialista ecc).
Dove si trova
45.4369912.31986
Informazioni generali
V/92
52 m2
€ 430.000
Vendita
Locale commerciale
Venezia
2023
10/10/2023
Accessori
1
Richiesta informazioni all'agenzia
Richiedi informazioni all'agenzia
