Quadrilocale a Venezia
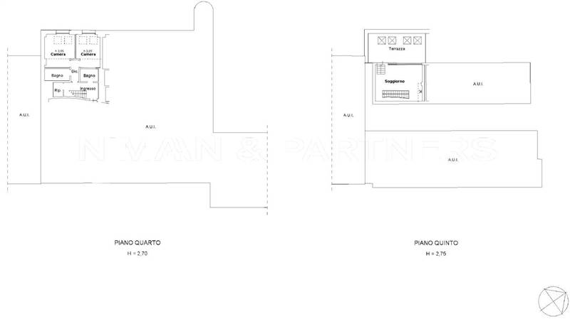
Esclusiva Nimaan & Partners - Elegante appartamento, ideale per affitti turistici, situato al piano quarto e quinto con terrazza panoramica all'interno del complesso immobiliare, denominato "Centrale Mazzoni" in memoria del suo progettista, l'architetto razionalista degli anni '30 Angiolo Mazzoni, Al primo livello (quarto piano) si trova la zona notte, così organizzata: piccolo ripostiglio un legante bagno due camere da letto con letti matrimoniali, un secondo bagno con box doccia emozionale, con funzione di bagno turco. Entrambe le camere sono particolarmente silenziose perchè affacciano sul chiostro condominiale, sul retro del palazzo. Il quinto piano è interamente occupato dalla zona giorno con tavolo da pranzo, area relax e cucina a vista dove alcuni scalini conducono alla portafinestra che si apre su un'affascinante terrazza attrezzata con vista sui tetti e sulla laguna. Riconvertito in un moderno edificio a destinazione residenziale di notevole pregio che ospita quasi quaranta appartamenti di elevato livello prestazionale in Classe Energetica A dotati di un sistema di ventilazione e raffrescamento dell'aria con impianti a pannelli radianti a pavimento. La struttura dell'edificio, realizzata in acciaio e legno con soffitto in travature a vista, le pavimentazioni in lastre di conglomerati in marmo/vetro e listoni di legno, i rivestimenti delle sale da bagno in mosaico di vetro e dotate di doccia con funzione "bagno turco", contribuiscono ad una restituzione di qualità di un importante edificio d'epoca. Vincitore del Premio Europea Colour Design 2011 Colori sull'acqua in quanto Venezia è una città organica, dove le acque del mare per sei ore entrano e per sei ore escono dalla laguna che la ospita. L'acqua salata del mare si mescola con l'acqua dolce della gronda lagunare, generando un ecosistema unico nel suo genere, dove forse contro natura l'uomo ha edificato. In queste acque dalla particolare colorazione verde dovuta alla vita dei fondali, tutto si specchia a cominciare dal cielo, il quale offre variazioni spettacolari. Il palazzo si trova nel sestiere di Cannaregio in zona Santa Lucia, è circondato da un bel giardino privato ed affaccia su un tranquillo canale. La posizione è ideale per raggiungere velocemente i mezzi di trasporto pubblici.
