Quadrilocale a Venezia

137 m2
4 vani
4 camere
1 bagno
€ 730.000
Foto Foto
Foto Foto
Foto Foto
Foto Foto
Foto Foto
Foto Foto
Foto Foto
Foto Foto

xclusivo de Nimaan & Partners.

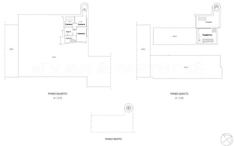
Esclusiva Nimaan & Partners Elegante appartamento, ideale per affitti turistici, situato al piano quarto e quinto con terrazza panoramica all'interno del complesso immobiliare, denominato "Centrale Mazzoni" in memoria del suo progettista, l'architetto razionalista degli anni '30 Angiolo Mazzoni, riconvertito in un moderno edificio a destinazione residenziale di notevole pregio che ospita quasi quaranta appartamenti di elevato livello prestazionale in Classe Energetica A dotati di un sistema di ventilazione e raffrescamento dell'aria con impianti a pannelli radianti a pavimento. La struttura dell'edificio, realizzata in acciaio e legno con soffitto in travature a vista, le pavimentazioni in lastre di conglomerati in marmo/vetro e listoni di legno, i rivestimenti delle sale da bagno in mosaico di vetro e dotate di doccia con funzione "bagno turco", contribuiscono ad una restituzione di qualità di un importante edificio d'epoca. Vincitore del Premio Europea Colour Design 2011 Colori sull'acqua in quanto Venezia è una città organica, dove le acque del mare per sei ore entrano e per sei ore escono dalla laguna che la ospita. L'acqua salata del mare si mescola con l'acqua dolce della gronda lagunare, generando un ecosistema unico nel suo genere, dove forse contro natura l'uomo ha edificato. In queste acque dalla particolare colorazione verde dovuta alla vita dei fondali, tutto si specchia a cominciare dal cielo, il quale offre variazioni spettacolari. Il palazzo si trova nel sestiere di Cannaregio in zona Santa Lucia, è circondato da un bel giardino privato ed affaccia su un tranquillo canale. La posizione è ideale per raggiungere velocemente i mezzi di trasporto pubblici per spostarsi dentro e fuori la città ed i numerosi negozi di Strada Nova.

Dove si trova

45.4412612.32226

Informazioni generali

534
137 m2
4 locali
€ 730.000
Vendita
Appartamento
Venezia
2011
01/06/2019

Accessori

1
4

Efficienza energetica

A
A
44,06 kwh/m2 anno

Richiesta informazioni all'agenzia

Nimaan & Partners

Via della Libertà 12
Venezia (VE)

Autorizzazione al trattamento dei dati personali (Mostra)
Dichiaro di aver letto l'informativa sul trattamento dei dati personali e autorizzo espressamente BasicSoft S.r.l. gestore di RisorseImmobiliari.it al trattamento dei dati da me forniti. Accetto inoltre che i dati sopra inseriti siano trasmessi alle agenzie immobiliari interessate per essere da loro ricontattato. BasicSoft S.r.l. declina ogni responsabilità riguardo al trattamento di tali dati da parte delle agenzie immobiliari.
*) Riempire tutti i campi contrassegnati. Almeno uno dei campi telefono e/o cellulare devono essere riempiti
Contatta
RisorseImmobiliari.it © Copyright 2025 - Tutti i diritti sono riservati BasicSoft S.r.l. | C.F./P.IVA: 05269090485 | Reg. Imprese di Firenze | Cap.Soc. Euro 10.330,00 I.V.