Quadrilocale in zona San Marco a Venezia
105 m2
4 vani
4 camere
2 bagni
€ 385.000
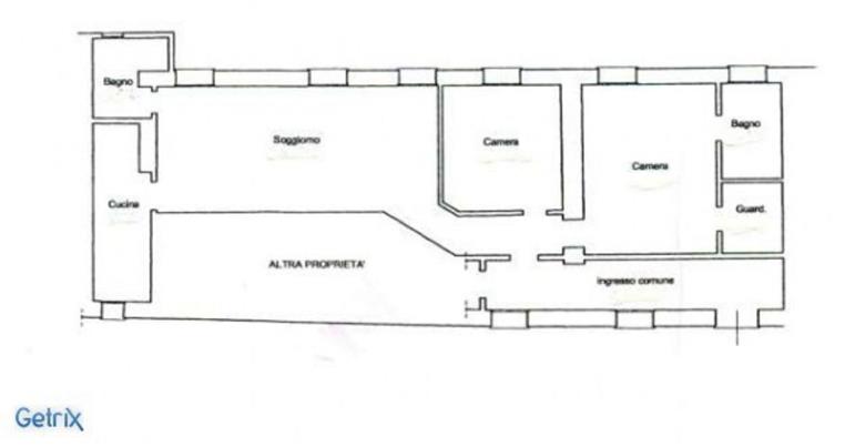
A pochi passi dal Campo della Bragora, su immobile preottocentesco, bellissimo pied-à-terre di oltre 100 mq. restaurato in maniera esemplare, luminosissimo e molto signorile, travature a vista, pavimenti in marmo cattedrale, finiture lusso, arredato con estremo buon gusto e funzionalità, composto da ampia zona living, cucina in nicchia, camera matrimoniale con bagno asservito e guardaroba, camera doppia, servizio di cortesia, porta blindata. Affaccio su grande giardino ricco di verde. La localizzazione dell'immobile è approssimativa, tutti i dettagli in studio.
Dove si trova
45.432412.3459
Informazioni generali
cs 2-02
105 m2
4 locali
€ 385.000
Vendita
Appartamento
Venezia
San Marco
2016
07/12/2016
Accessori
2
4
Efficienza energetica
G
G
175 kwh/m2 anno
Richiesta informazioni all'agenzia
Richiedi informazioni all'agenzia
house deal consulting venezia
Via castello san lio 5274
Venezia
(VE)
P.IVA: 02425620271
