Trilocale a Venezia
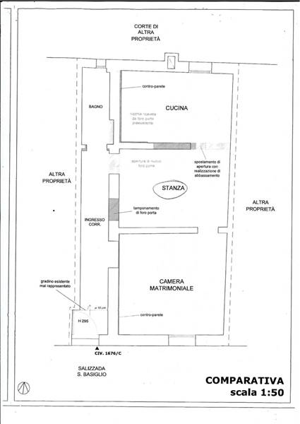
A Venezia, nel sestiere di Dorsoduro, nella zona di San Basilio, proponiamo in vendita un bell' appartamento completamente restaurato ed arredato. Situato al piano terra, l'unità immobiliare si estende su una superficie di 50 mq calpestabili e si compone di un ingresso corridoio, una luminosa zona giorno con affaccio su giardino, una cucina funzionale e abitabile con affaccio su una corte, una e camera da letto e un bagno. L'appartamento dispone di un efficiente sistema di riscaldamento autonomo. Grazie alla sua posizione, l'immobile gode di una piacevole luminosità e di una suggestiva vista sui dintorni. Comoda la vicinanza di mezzi pubblici e negozi e supermercati.
Dove si trova
Informazioni generali
Accessori
Efficienza energetica
Richiesta informazioni all'agenzia
Richiedi informazioni all'agenzia
