Ufficio abitabile a Venezia
vendita Ufficio Venezia
Eccezionale opportunità di investimento nel cuore di Mestre!
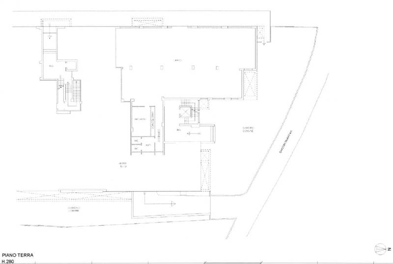
Proponiamo in vendita un ampio ufficio di 358 mq, situato al piano terra di un elegante condominio residenziale di sei piani. Attualmente adibito ad uso ufficio, questo spazio offre una versatilità straordinaria per soddisfare le esigenze direzionali o commerciali della tua attività. Concepito come un moderno open space, l'unità presenta ampie vetrine su strada, garantendo una visibilità ottimale per attirare l'attenzione di potenziali clienti e partner commerciali. La distribuzione interna comprende un ampio locale open space, ideale per favorire la collaborazione e la creatività del team, un pratico locale archivio e servizi completi di antibagno, garantendo comfort e funzionalità.
La posizione strategica di questo immobile non potrebbe essere migliore: situato in Via Einaudi, nel cuore del centro di Mestre, gode di un intenso flusso sia pedonale che veicolare. La comodità ai mezzi pubblici e la presenza di ampi parcheggi nelle immediate vicinanze offrono un accesso agevole per collaboratori e clienti.
Non lasciarti sfuggire questa straordinaria opportunità di stabilire la tua attività in un contesto dinamico e in continua crescita. Contattaci oggi stesso per pianificare una visita e scoprire tutte le potenzialità di questo spazio unico nel suo genere!
