Villa in Via Scaramuzza, . in zona Mestre a Venezia
vendita Villa singola Venezia
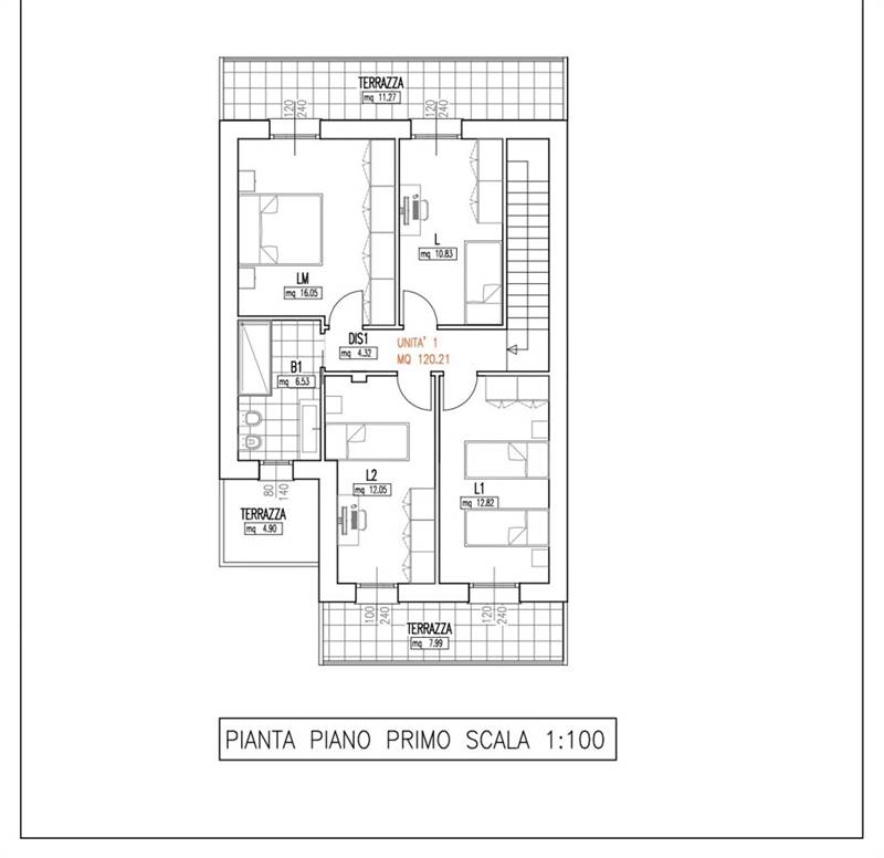
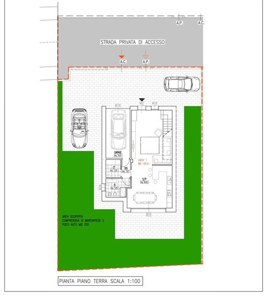
ZELARINO: Proponiamo in vendita una costruzione unica nel suo genere. In posizione defilata dal traffico ma comoda per raggiungere il centro di Zelarino, sorgerà una nuova costruzione composta da una bivilla ed una villa singola. Le dimensioni saranno tutte generose con un'ampia zona giorno al piano terra divisibile in soggiorno e cucina, servizio lavanderia ed al piano primo 4 camere da letto ed un altro servizio. Sempre al piano terra sarà presente sia il garage che il posto auto così come un bellissimo giardino privato. Tutte le finiture sono personalizzabili e a livello tecnologico saranno utilizzate tutte le ultime novità riguardanti il risparmio energetico come i pannelli solari fotovoltaici e predisposizione per batteria di accumulo e la caldaia in pompa di calore che assicura un sistema di ultima generazione al passo con le recenti norme in materia di transizione ecologica. Ovviamente tutti gli edifici saranno in classe energetica A4. Non perdere tempo, prendi un appuntamento per visionare i progetti e il capitolato!
Informazioni generali
Accessori
Efficienza energetica
Video
Richiesta informazioni all'agenzia
Richiedi informazioni all'agenzia
