Attico ristrutturato in zona Veronetta a Verona
Attico in Vendita di 240 mq a Verona
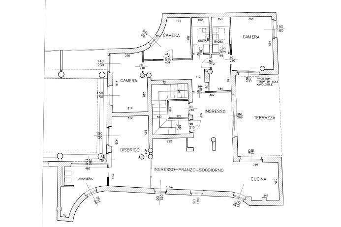
- VERONA _ VERONETTAPrestigioso attico di mq 220 situato nel pieno centro storico dotato di 50 mq di splendida terrazza e tutti i comforts moderni in un contesto pregevole in fase finale di restauro.Internamente disposto in ampio soggiorno con accesso alla terrazza principale, ampia cucina con zona pranzo con accesso alla terrazza, studio, tre camere da letto, due bagni ed ampia zona lavanderia, una terrazza laterale e un'ampia terrazza frontale con accesso dal'area giorno e dalla cucina e vista panoramica sulla città di Verona.Immobile dotato di ascensore con accesso diretto, impianto di condizionamento, riscaldamento a pavimento, infissi termici performanti, rifiniture di qualità .Il nuovo intervento edilizio ha dato la possibilità di consolidare la struttura rendendola antisismica, con protezione acustica ed ad alto risparmio energetico.Inoltre vi è un importante garage sotterraneo con comodo passo carrabile.⬠850.000,00Disponibili fino a 8 posti auto coperti per ⬠50.000,00 ciascuno.CLASSE ENERGETICA: B 60,54 [Kwh/m²a]Vai all'annuncio: https://www.studio-valle.com/it/verona-veronetta/STUDIO IMMOBILIARE VALLEFlaminia S.r.l.Real estate and investments24121 Bergamo - ItalyV.le Vitt. Emanuele II n. 65tel +39 035 231588WhatsApp: +39 3920190070www.studio-valle.cominfo@studio-valle.comFacebook: StudioImmobiliareValleTwitter: ValleRealEstateSkype: Valle-Real-Estate
Dove si trova
Informazioni generali
Accessori
Efficienza energetica
Planimetria
Richiesta informazioni all'agenzia
Richiedi informazioni all'agenzia
