Capannone industriale abitabile a Nove
vendita Capannone Industriale Nove
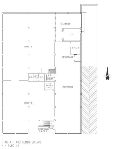
Porzione immobiliare a carattere artigianale sita al piano seminterrato di un complesso produttivo distribuito su due livelli di cui uno seminterrato. L'unità di 1084 mq, direttamente raggiungibile da rampa esterna carrabile, ha altezza intera di 3,60 m e si compone di un disimpegno di ingresso, due ampi vani uso deposito, laboratorio, un vano uso ufficio, locali tecnici e servizi igienici. Nell’edificio sono ricavati complessivamente 3 laboratori artigianali. Il complesso è stato edificato nei primi anni ’80 ed è stato oggetto di un intervento di ristrutturazione nei primi anni 2000. Ha strutture tradizionali dell’edilizia civile con telaio di cemento armato in opera, tamponamenti con mattoni faccia-vista e copertura a falde con manto in coppi. Le aree esterne comuni, utilizzate per la movimentazione ed il parcheggio di mezzi ed autoveicoli, sono prive di pavimentazioni.
