Villa a schiera in Via Roma a Gambellara
Villa a schiera in Vendita di 195 mq a Gambellara
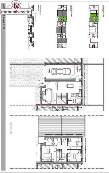
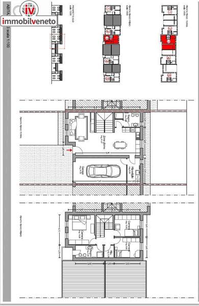
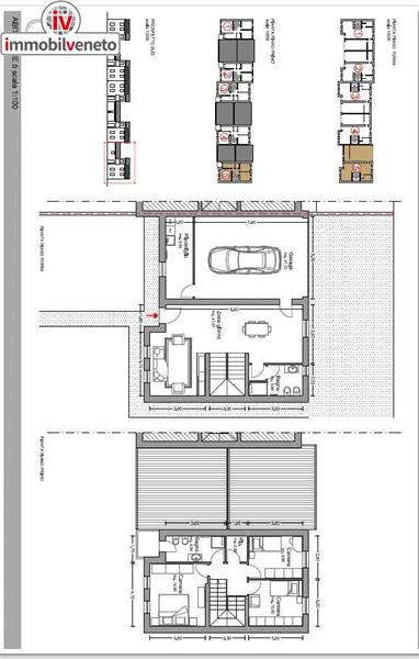
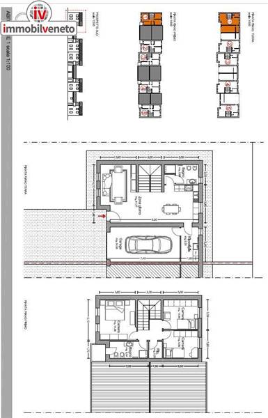
In località Torri di Confine, proponiamo in vendita nuove costruzione a schiera in quartiere residenziale moderno e servito.La posizione risulta strategica per vicinanza sia ai centri di Lonigo sia di Gambellara, sia di San Bonifacio ed il quartiere residenziale in cui sono incastonate le abitazioni garantisce privacy e tranquillità . Le soluzioni sono 5 in totale e sono tutte sviluppate su due livelli fuori terra.La struttura tutta risulta attualmente in fase di costruzione con possibilità di scelta di modifiche interne e finiture. Ciascuna unità possiede ingresso indipendente pedonale e carraio ed area verde esterna scoperta di proprietà esclusiva. La composizione interna è data da: al piano terra ingresso con porticato, soggiorno e cucina in ampio ambiente open space, un ripostiglio ed un servizio a disposizione della zona giorno; al piano primo troviamo tre spaziose camere da letto, di cui una matrimoniale e due singole, ed un ulteriore servizio a disposizione della zona notte.Ciascuna unità è inoltre provvista di garage di proprietà con agevole area di manovra.Tutte le unità prevedono l'utilizzo di fonti rinnovabili per un'ottima resa energetica e finiture di qualità tra cui:- serramenti in pvc con vetrocamera e portoncino blindato;- riscaldamento a pavimento e predisposizione all'impianto di raffrescamento;- predisposizione antifurto;- pavimenti in ceramica;- impianto fotovoltaico di proprietà . Futura classe energetica elevata Gli annunci immobiliari pubblicati non costituiscono elemento contrattuale.
Dove si trova
Informazioni generali
Accessori
Efficienza energetica
Richiesta informazioni all'agenzia
Richiedi informazioni all'agenzia
