Capannone industriale in Strada Tarquinese a Tuscania
Capannone industriale in Vendita di 1330 mq a Tuscania
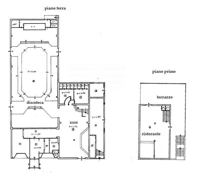
LAZIO â VITERBO â TUSCANIALOCALE COMMERCIALE EX-DISCOTECAin contesto commerciale, artigianale e industrial, sulla via principale che da Tuscania conduce al mare, ad altissimo transito veicolare ed in posizione fronte strada, proponiamo ampio capannone, categoria D8, di circa 1.300 mq su un lotto di oltre 7.000 mq.Attualmente lo stato risulta totalmente da ristrutturare oppure, a seconda delle esigenze di investimento, da demolire e ricostruire. Lâimmobile fino al 2011 ospitava una discoteca con un ristorante al piano superiore ma, per la sua conformazione e la posizione, risulta adatto a diverse attività . Inoltre, arricchisce lo stabile l'ampia area esterna utile per il parcheggio della clientela. Ottimo investimento, non solo per la visibilità che la posizione garantisce ma anche per il volume dello stabile.Distanze chilometriche: km 2 il centro, km 20 dalla S.S. Aurelia, km 30 Viterbo, km 40 Civitavecchia, km 118 Roma.Contattaci per avere maggiori informazioni e fissare un appuntamento.
