vendita Terreno Industriale Battipaglia
Rif: vensanlucterr
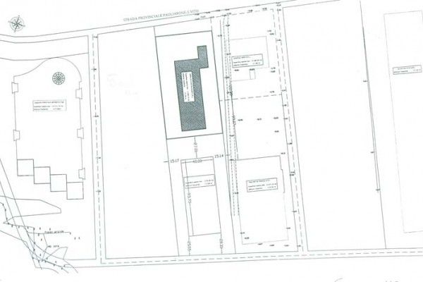
Terreno industriale in Via 312 a Battipaglia
- 495.000
- 5000 m2
- 11 locali
Terreno di mq 5000 con annesso capannone nel piano regolatore generale, l’intera area è individuata come zona “D4” zona asi semplice, sottozona Ed di pianura, con fascia di rispetto. Le norme tecniche di attuazione dispongono, per la predetta zona, la manutenzione straordinaria e la ristrutturazionee edilizia degli immobili esistenti.
Inoltre per gli edifici esistenti ai sensi del PRG vigente, l’art. 17 comma 2 recita ”….Degli edifici esistenti nella zona a prevalente conformazione naturale del territorio, configurati quali annesse strutture, il mutamento dell'uso è ammissibile solamente se ne venga dimostrata mediante piani di sviluppo aziendale o interaziendale, la non necessità alla conduzione del fondo”, quindi per i corpi di fabbrica esistenti si può ottenere il . Il tutto naturalmente richiedendo, tra le altre autorizzazioni. ... continua
