Appartamento abitabile a Firenze
affitto Appartamento Firenze
[ITA]
Appartamento in Vicolo dei Malespini, Firenze, Italy
Disponibile da: 09/11/2023
Prenota online: https://roomlessrent.com/it/rent-listing/31345
[ENG]
Apartment in Vicolo dei Malespini, Firenze, Italy
Available from: 09/11/2023
Book it online: https://roomlessrent.com/en/rent-listing/31345
Mensilità minime prenotabili: 1
Mensilità massime prenotabili: 12
Età accettata: Nessuna preferenza
Minimum months rental: 1
Maximum months rental: 12
Accepted age: No preference
*************
[ITA] COME FUNZIONA ROOMLESS?
Roomless è una piattaforma online per affitti a medio-lungo termine che nasce come garanzia per l’inquilino: verifichiamo tutti gli appartamenti e le foto sono recenti ed affidabili quindi puoi evitare la visita e prenotare online nella massima tranquillità per evitare che qualcuno lo faccia prima di te.
Per prenotare online, segui il link sopra e clicca su affitta subito.
Se hai bisogno di aiuto, contattaci e ti aiuteremo.
[ENG] HOW DOES ROOMLESS WORK?
Roomless is an online platform for medium-long term rentals that was created as a guarantee for the tenant: we check all the apartments and the photos are recent and reliable so you can avoid the viewing and book online with peace of mind to avoid someone else doing it before you.
To book online, follow the link above and click on rent now.
If you need help, contact us and we will help you.
*************
[ITA]
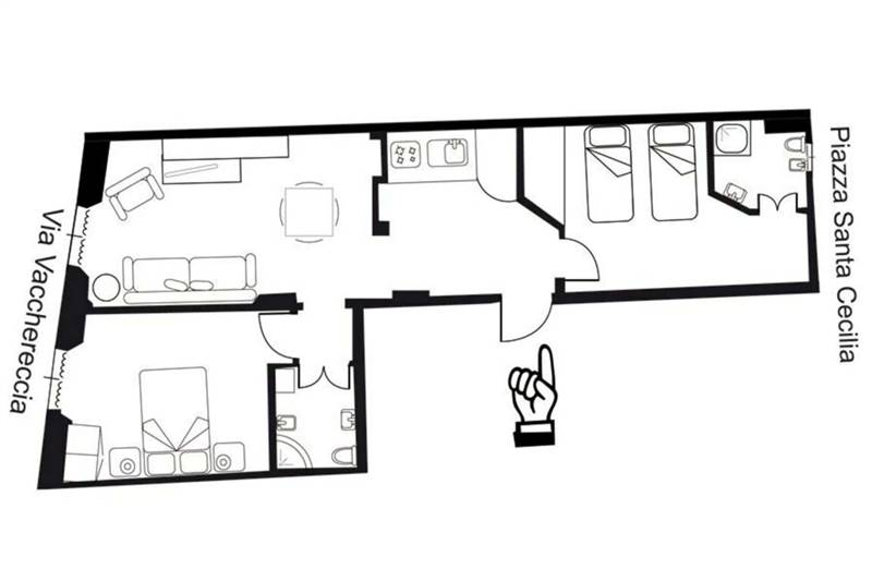
Appartamento nuovo e stupendo situato a Firenze in zona Duomo. Ideale per affitti di breve periodo. Può alloggiare fino a 4 persone, ha 2 camere da letto e 2 bagni completi.
Situato al secondo piano, con ascensore, di un palazzo storico collocato in Vicolo de' Malespini, proprio dietro Piazza della Signoria. La zona è una delle più ricercate di Firenze e il palazzo è circondato dai monumenti più importanti di Firenze.
Appartamento con 2 camere da letto in stile moderno misto classico (80 mq) può ospitare fino a 4 persone ed ha 2 bagni. L'appartamento è stato completamente rinnovato, ristrutturato con gusto ed è dotato di aria condizionata. La proprietà comprende una zona giorno arredata con un tavolo da pranzo in cristallo nero (4-6 persone) un divano in pelle bianca, TV LCD, stereo hi-fi, e un attrezzato e funzionale angolo cottura, dotato di un forno tradizionale, frigo / freezer. La zona notte comprende due camere da letto, una con letto matrimoniale e l'altra con due letti singoli, entrambe complete di bagno en-suite con doccia.
Riscaldamento: autonomo.
Aria condizionata: uno split in salotto e uno in ogni camera da letto.
[ENG]
New and wonderful apartment located in Florence in the Duomo area. It is ideal for short-term rentals. It can comfortably accommodate up to 4 people and has 2 bedrooms and 2 complete bathrooms.
Situated on the second floor, with an elevator, of a building in Vicolo de' Malespini, right behind Piazza Della Signoria. The area is one of the most renowned in Florence, and as soon as the guests are outside the house they find themse
