Appartamento in Via Romagnoli in zona Case Finali a Cesena
Appartamento in Vendita di 236 mq a Cesena
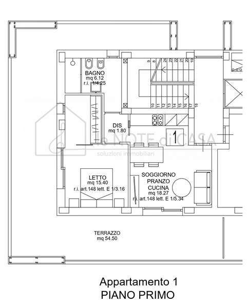
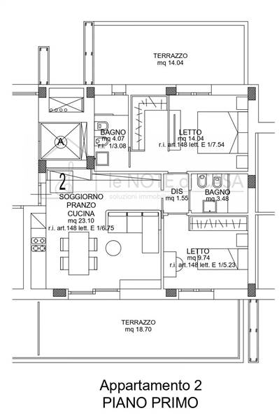
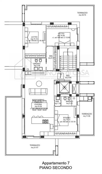
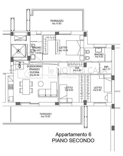
Cesena quartiere di Case Finali. In nuovo contesto di recente urbanizzazione e alto pregio, adiacente a parchi e ville di recente edificazione, si propone esclusivo attico di prossima costruzione con garage, cantina e posti auto privatiL'appartamento sito al piano secondo di una palazzina di tre piani si compone di ingresso che affaccia su un grande open adibito a zona giorno, studio e serviziAttraverso un disimpegno si prosegue per la zona notte che prevede due camere e relativo bagno.Ogni lato dell'appartamento è servito da ampi terrazzi che conferiscono grande luminosità ed una visuale eccellenteClasse energetica prevista A o superiori, impianto a pannelli radianti a pavimento e ventilazione meccanicaFiniture interne e soluzioni tecniche di alto pregioConsegna entro il 31/12/2024Per informazioni potete contattare agenzia Le Note di Casa al numero 347 1392977 oppure 0547 381191 oppure via mail luca@lenotedicasa.it o info@lenotedicasa.itLa presente descrizione è a carattere informativo e non costituisce vincolo contrattuale.
Dove si trova
Informazioni generali
Accessori
Richiesta informazioni all'agenzia
Richiedi informazioni all'agenzia
