Appartamento in Via Panaro in zona San Mauro in Valle a Cesena
Appartamento in Vendita di 174 mq a Cesena
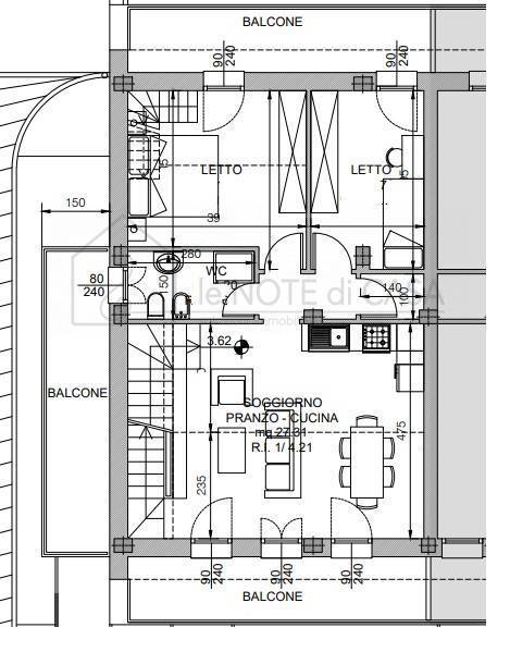
Cesena, San Mauro in Vallein nuova costruzione in completamento vi proponiamo un bellissimo appartamento caratterizzato da ampi spazi e finiture di pregioL'unità abitativa si sviluppa a piano primo, con ingresso indipendente, balcone privato, soggiorno con angolo cottura, ampio disimpegno, due camere da letto e bagnoi.A completamento del piano ulteriori due balconi, uno servizio della zona notte e uno della zona giorno.Al piano superiore due magnifici soppalchi da adibire a scelta con bagno ed esclusivo terrazzo.All piano interrato troviamo il grande garage da 30 mq atto ad ospitare 2 auto ed accesso diretto al pianoOgni immobile è stato progettato in base alle più recenti disposizioni in termini di contenimento energetico, con solare fotovoltaico da 6kw che alimenta la pompa di calore e tutte le predisposizioni possibili.Finiture di ottima qualità da parte di impresa con consolidata esperienza e solidità finanziaria.Immobile soggetto a contributo sisma bonus con detrazione fiscale di circa 80.000 â¬Per informazioni Le Note di Casa Luca 3518737395 oppure manda una mail a info@lenotedicasa.itLa presente descrizione è carattere informativo e non costituisce vincolo contrattuale.Alcune delle immagini proposte, rappresentano possibili soluzioni d'interni e sono puramente a scopo illustrativo.
Dove si trova
Informazioni generali
Accessori
Efficienza energetica
Richiesta informazioni all'agenzia
Richiedi informazioni all'agenzia
