Appartamento in Via Dismano in zona Torre del Moro a Cesena
Appartamento in Vendita di 194 mq a Cesena
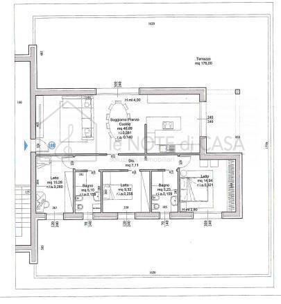
CESENA - quartiere Torre del Moro. In un contesto di nuova urbanizzazione proponiamo un ATTICO di nuova costruzione, disposto su un unico livello con ampie superfici vetrate e splendido affaccio su terrazzo di ben 180 METRI QUADRI, con vista panoramica a 360 gradi sulla città e sulle colline. Internamento l'attico presenta una zona giorno OPEN SPACE di oltre 46 mq, , 3 camere da letto con accesso diretto al terrazzo solarium, e 2 bagni entrambi finestrati.A servizio dell'appartamento è presente un garage ed un posto auto.L'immobile è di prossima costruzione ed è già possibile prenotare gli appartamenti, bloccando tipologia e prezzo.Capitolato di altissimo livello con riscaldamento a pavimento alimentato da pompa di calore, 4 kw di fotovoltaico di pertinenza per ogni appartamento, ventilazione meccanica controllata, climatizzatore, antifurto. L'appartamento viene consegnato completo e "full optional"Per informazioni contattare Luca (LeNotediCasa) 347 1392977 oppure via mail luca@lenotedicasa.it Le presenti informazioni sono a carattere informativo e non costituiscono elemento contrattuale.
Dove si trova
Informazioni generali
Accessori
Richiesta informazioni all'agenzia
Richiedi informazioni all'agenzia
