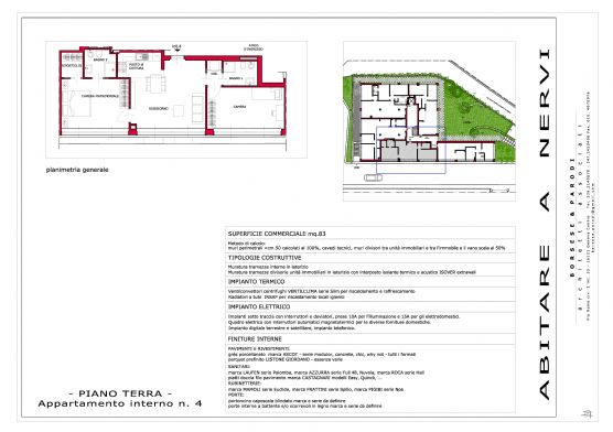
Appartamento in Via San Lorenzo 17 in zona Nervi a Genova
trattasi di unità abitativa tipo loft con ampio soggiorno aperto con ampia cucina aperta soggiorno e pranzo. Le altezze interne consentono di prevedere soppalco di arredo. Zona notte con due camere due servizi igienici e dispensa. disponibili Box doppi e singoli. L'area oggetto di intervento in Genova - Nervi, è inserita in un lotto di terreno in fregio alla Via Oberdan, parallela al fronte mare. Il progetto prevede il recupero di un ex edificio industriale nel quartiere di Nervi. L'intervento edilizio consentirà la realizzazione di numero dieci unità abitative, suddivise tra il piano terra ed il piano primo.
ll recupero dell'edificio Industriale, di chiara impronta razionalista, progettato dall'Ing. Arch. Luigi Carolo Daneri prevede la realizzazione di unità abitative, tipo loft, di assoluta particolarità ed usabilità; le altezze interne, consentiranno la realizzazione di piccoli soppalchi a movimentare gli ambienti moderni e caratterizzati dalla ampie vetrate tipiche dei locali ad uso industriale. Le superfici degli alloggi variano tra i mq 70 e mq 130 con possibilità di ricavare anche unità di grandi metrature mediante accorpamento.
