Bilocale in Via Napoli in zona Principe a Genova
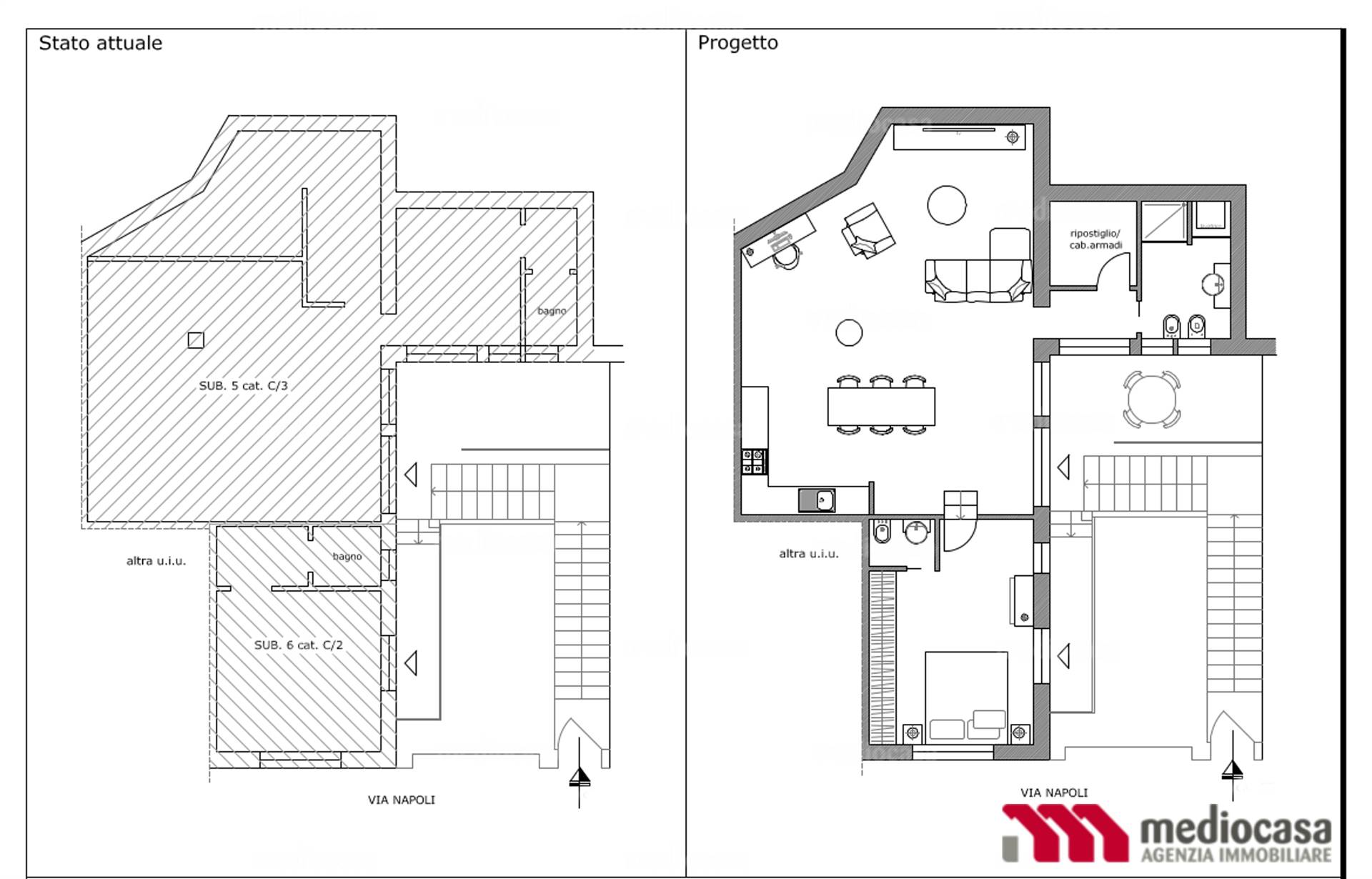
Mediocasa - Oregina - Se stai cercando l'opportunità perfetta per creare la casa dei tuoi sogni, questa è quella giusta per te! In Via Napoli, ti proponiamo un appartamento di 90 mq da personalizzare secondo il tuo gusto e le tue esigenze, a soli 105.000 Eu., con box auto incluso (valore di mercato Eu. 50.000)! Non troverai un'offerta simile, 650 Eu./mq è un'opportunità rara in zona! L'immobile si compone attualmente di: ampio bagno finestrato, una camera matrimoniale, soggiorno con accesso a poggiolo privato, cucina separata con uscita sul terrazzino di proprietà, che funge da ingresso indipendente. Ma non è tutto! Con la ristrutturazione, potrai trasformare questo spazio in un appartamento moderno e luminoso. Abbiamo incluso nelle foto un progetto di ristrutturazione, realizzato dal nostro architetto di fiducia, che ti permette di visualizzare come l'appartamento può evolvere in un open space perfetto per la zona giorno, con ampie metrature per accogliere tutti i tuoi amici nelle serate conviviali. Inoltre, il progetto prevede una camera matrimoniale, doppi servizi, una cabina armadio e un secondo balcone, per garantirti il massimo comfort. E non dimenticare il box auto: comodissimo, proprio sotto casa, e pronto a ospitare la tua auto senza stress! La posizione strategica è un altro punto forte: a due passi da mezzi pubblici, negozi, scuole e servizi. In soli 5 minuti di auto sei nel centro della città e vicino all'ingresso dell'autostrada. Non c'è bisogno di cercare oltre: questa casa è la soluzione ideale per chi vuole combinare comfort, accessibilità e opportunità di personalizzazione. Contattaci subito per prenotare la tua visita e scoprire tutto il potenziale di questo immobile. Non lasciarti sfuggire questa occasione, perché qualcosa di così conveniente non capita tutti i giorni!
Dove si trova
Informazioni generali
Accessori
Efficienza energetica
Richiesta informazioni all'agenzia
Richiedi informazioni all'agenzia
