Locale commerciale a Carasco
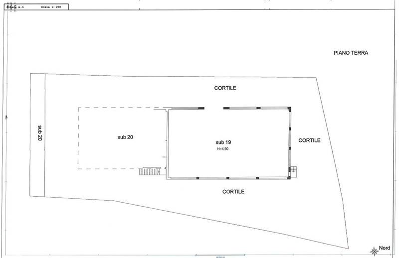
**Laboratorio in Vendita a Carasco (GE)**Si propone ampio fondo/laboratorio situato nel comune di Carasco, a poca distanza dal centro. Con una superficie di 373 mq catastali, offre uno spazio ideale per attività artigianali o industriali. L'altezza di 4.50 metri garantisce la massima versatilità per le tue esigenze operative. La struttura è dotata di un piazzale e cortile circostante, perfetti per facilitare le operazioni di carico e scarico e per parcheggiare le vetture.L'accesso è comodo e pratico grazie alla porta d'ingresso carrabile larga 5 metri e all'ingresso pedonale separato. Il capannone si presenta in buone condizioni, pronto per accogliere la tua attività. Situato al piano terra, offre facilità di accesso e movimentazione. Non perdere l'opportunità di investire in una proprietà strategicamente posizionata e ben strutturata. Contattaci per maggiori dettagli e per organizzare una visita!
Dove si trova
Informazioni generali
Accessori
Richiesta informazioni all'agenzia
Richiedi informazioni all'agenzia
