Terreno edificabile in Via Barletti a Casarza Ligure
800 m2
€ 70.000
Terreno pianeggiante edificabile
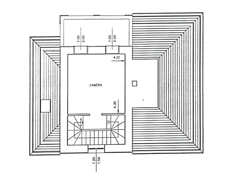
Casarza Ligure - a un km. dal centro, in zona pianeggiante vendo lotto di terreno edificabile con progetto per costruire villetta singola. Il terreno è adiacente alla strada carrabile ed è in zona servita da tutte le utenze. Data la conformazione pianeggiante del terreno i costi di costruzione sono sensibilmente inferiori rispetto a quelli necessari in zona collinare. Per le caratteristiche si presta ad essere una valida soluzione per chi desidera costruire la propria abitazione principale vicino a tutti i servizi.
Dove si trova
44.280349.455085
Informazioni generali
terreno barletti
800 m2
€ 70.000
Vendita
Terreno edificabile
Casarza Ligure
via Barletti
Civile
19/08/2024
Richiesta informazioni all'agenzia
Richiedi informazioni all'agenzia
Agenzia Immobiliare Lago
Piazza della Vittoria 20
16030
Casarza Ligure
(GE)
P.IVA: 01236310999
