grande villa singola buddi buddi
Rif: buddi buddi 160
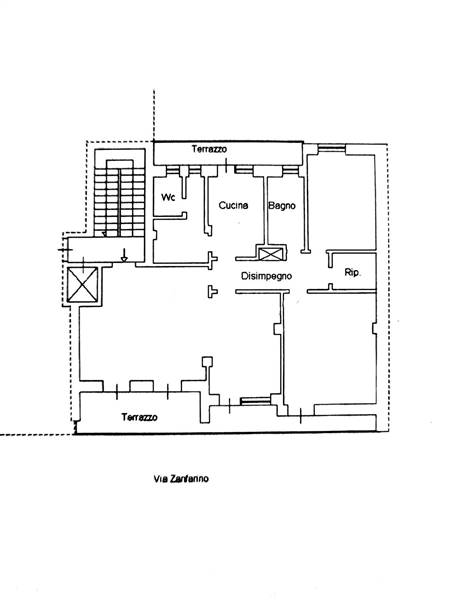
Villa in Buddi Buddi a Sassari
- 160.000
- 350 m2
- 7 locali
- giardino 12000 mq
Buddi buddi zona,vicinissima al mare, grande casa indipendente di 350 mq disposti in piano terra open space di 210 mq e piano primo di 140 mq oltre terrazza da 70 mq
terreno pianeggiante di circa 12.000 mq
pozzo
parzialmente da rimodernare
vero affare
