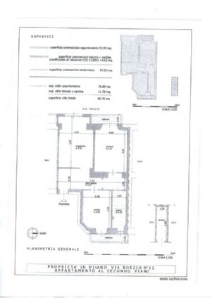
Bilocale in Via Boezio 12 in zona Fiera a Milano
95 m2
2 vani
1 bagno
ascensore
€ 1.160
In contesto signorile anni '50,appartamento di 95 mq,ingresso,anticamera,soggiorno,cucina abitabile con balcone,camera da letto,bagno. Parquet e monocuttura,serramenti nuovi con doppi vetri.
Dove si trova
45.47919.160343
Informazioni generali
VIA BOEZIO/FIERA
95 m2
2 locali
€ 1.160
Affitto
Appartamento
Milano
Fiera
VIA BOEZIO 12
30/11/2012
Accessori
1
4 di 8, con ascensore
Centralizzato
Abitabile
Abitabile
Efficienza energetica
G
G
192,98 kwh/m2 anno
Richiesta informazioni all'agenzia
Richiedi informazioni all'agenzia
Cerca nel comune di Milano
Lista delle zone
- Barona/ Giambellino/ Lorenteggio
- Città Studi/ Lambrate/ Udine/ Loreto
- Fiera/ Firenze/ Sempione/ Paolo Sarpi/Arena
- V Giornate/ XXII Marzo/ Porta Romana
- De Angeli/ Vercelli/ Washinghton
- P.ta Genova/ Romolo/ Solari
- Bocconi/ Corso Italia/ Ticinese
- Centro Storico
- Affori/ Bovisa/ Niguarda/ Testi
- Greco/ Monza/ Palmanova
