Trilocale in zona Bocconi, Corso Italia, Ticinese a Milano
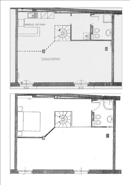
Milano, Corso San Gottardo n. 20, nel cuore dei Navigli, in Porta Ticinese, all’interno di una corte “Vecchia Milano” completamente ristrutturata, in un contesto elegante e riservato, proponiamo in vendita un appartamento open space di mq. 90 circa, posto al piano terra di un edificio di due piani, disposto su due livelli, con ascensore e servizio di portineria, così composto: doppio ingresso, grande zona giorno con soggiorno, zona pranzo, cucina a vista, disimpegno, lavanderia, bagno; zona notte con camera matrimoniale, cameretta e bagno; l’alloggio ha una mono esposizione con affaccio sul cortile interno; il pavimento è rivestito in parquet di legno massello in tutti gli ambienti; i due bagni sono arredati con sanitari sospesi di primaria marca e box doccia e sono rivestiti in mosaico Bisazza; i serramenti esterni delle portefinestre sono in legno completi di vetrocamera; i serramenti sono protetti da persiane in legno massello; l’appartamento è dotato di impianto di riscaldamento autonomo a radiatori e di impianto canalizzato di condizionamento autonomo; è fornito di impianto videocitofonico e di impianto antintrusione; impianto TV satellitare e via cavo; finiture di buona fattura, impianti totalmente rifatti, porta d’ingresso blindata; la zona è ben servita dai mezzi di trasporto pubblici; nelle immediate vicinanze si trovano il NABA (Nuova Accademia di Belle Arti), lo IULM, la Bocconi e l’Università Cattolica, supermercati, negozi di prima necessità, scuole, oratorio, uffici postali e banche. Le spese condominiali annue ammontano a euro 1.000 circa. L’appartamento sarà libero al rogito. Possibilità di box auto.
La richiesta è di euro 435.000.
Dove si trova
Informazioni generali
Accessori
Efficienza energetica
Richiesta informazioni all'agenzia
Richiedi informazioni all'agenzia
Cerca nel comune di Milano
Lista delle zone
- Barona/ Giambellino/ Lorenteggio
- Città Studi/ Lambrate/ Udine/ Loreto
- Fiera/ Firenze/ Sempione/ Paolo Sarpi/Arena
- V Giornate/ XXII Marzo/ Porta Romana
- Bocconi/ Corso Italia/ Ticinese
- P.ta Genova/ Romolo/ Solari
- De Angeli/ Vercelli/ Washinghton
- Centro Storico
- Affori/ Bovisa/ Niguarda/ Testi
- Greco/ Monza/ Palmanova
