Trilocale in Via Tortona in zona Solari a Milano
70 m2
3 vani
2 camere
1 bagno
ascensore
€ 395.000
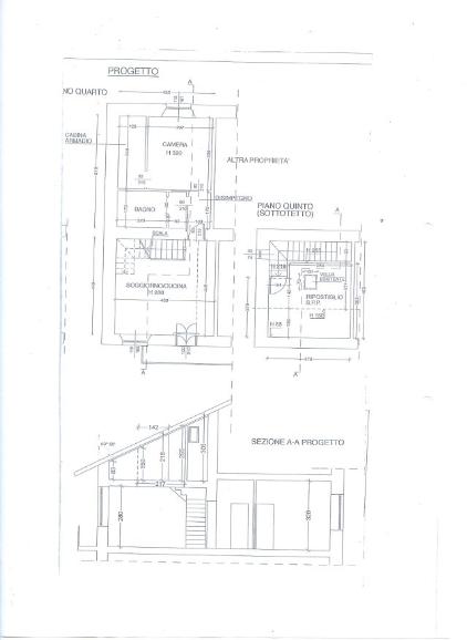
In palazzina "Vecchia Milano", tranquillo appartamento piano quarto, ultimo del ballatoio, così composto: Ingresso, soggiorno con cucina a vista, camera da letto con cabina armadio, antibagno e bagno; dal soggiorno si accede al piano soprastante, piccola seconda cameretta mansardata o studio.
Completamente ristrutturato tre anni fa, doppi vetri, parquet, travi a vista e predisposizione aria condizionata.
Dove si trova
45.451879.163126
Informazioni generali
BERGOGNONE
70 m2
3 locali
€ 395.000
Vendita
Appartamento
Milano
Solari
Via Tortona
03/12/2012
Accessori
1
2
4 di 4, con ascensore
Autonomo
Ottime
A vista
Efficienza energetica
G
G
378,8 kwh/m2 anno
Richiesta informazioni all'agenzia
Richiedi informazioni all'agenzia
Cerca nel comune di Milano
Lista delle zone
- Barona/ Giambellino/ Lorenteggio
- Città Studi/ Lambrate/ Udine/ Loreto
- Fiera/ Firenze/ Sempione/ Paolo Sarpi/Arena
- V Giornate/ XXII Marzo/ Porta Romana
- De Angeli/ Vercelli/ Washinghton
- P.ta Genova/ Romolo/ Solari
- Bocconi/ Corso Italia/ Ticinese
- Centro Storico
- Affori/ Bovisa/ Niguarda/ Testi
- Greco/ Monza/ Palmanova
