Rustico casale da ristrutturare a Gradara
vendita Rustico/Casale/Corte Gradara
Ampio casale con terreno
L'Opportunità Agricola:
Per chi desidera trasformare questo casale in una vera e propria azienda agricola o semplicemente estendere i propri confini per una privacy assoluta, è disponibile l'acquisto dei terreni agricoli direttamente confinanti (visibili nelle planimetrie allegate). Si tratta di un corpo di circa 10 ettari complessivi che avvolgono la proprietà, composta da:
- Un vigneto produttivo;
- Ampi campi seminativi pianeggianti e collinari.
Questi terreni sono acquistabili in blocco o separatamente a seconda delle esigenze tenendo conto delle richieste dei venditori, ad un prezzo medio di circa 2,50 €/mq che sale per ciò che è già coltivato. Un'occasione rara per produrre il proprio olio e vino a due passi dal mare.
Immerso nella tranquillità delle prime colline al confine tra Romagna e Marche, proponiamo in vendita un caratteristico casale rustico completamente indipendente, un’opportunità unica per chi sogna di ridare vita a una dimora storica a soli 10 minuti dalle spiagge e dal suggestivo Parco Naturale del Monte San Bartolo.
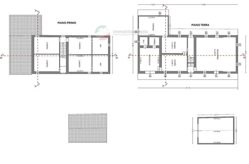
Il fabbricato principale, che necessita di una ristrutturazione completa, conserva tutto il fascino della tradizione rurale. Sviluppato su due livelli per una generosa metratura, la disposizione interna (come da piantina allegata) offre enormi potenzialità di personalizzazione:
- Piano Terra: Attualmente suddiviso in zona giorno con soggiorno, cucina e sala pranzo, arricchito da ampi locali accessori tipici dell'epoca come una grande cantina, un ripostiglio e un prezioso locale con antico forno a legna, ideale per creare una taverna conviviale.
- Piano Primo: La zona notte ospita 4 grandi vani (camere/ripostigli) disposti in maniera classica e simmetrica, che godono di una vista panoramica sul verde circostante.
La proprietà è circondata da una corte privata recintata, un'oasi di pace ombreggiata da alberi ad alto fusto che garantiscono privacy e fresco d'estate. A completare la proprietà, distaccato dal corpo principale, troviamo un ampio deposito attrezzi/fienile (visibile in planimetria e foto) GIA' RISTRUTTURATO, perfetto per essere trasformato in garage, dependance per gli ospiti o studio artistico.
il prezzo fa riferimento a parte di terreno, deposito attrezzi e il fabbricato principale.
La location è strategica: immersa in un contesto agricolo di vigneti e uliveti che offrono panorami da cartolina, ma non isolata. La vicinanza al mare e alle principali vie di comunicazione la rende ideale sia come residenza principale di prestigio, sia come struttura ricettiva (B&B o agriturismo) data l'alta vocazione turistica della zona, il casale è praticamente "abbracciato" da questi campi, il che aumenta enormemente il valore potenziale della proprietà per chi vuole creare un'azienda agricola o garantire la propria privacy totale.
Prezzi dei terreni disponibili su richiesta.
