Magazzino in Via Forni Sant'Antonio da padova, 12 in zona Marino Centro a Marino
vendita Magazzino Marino
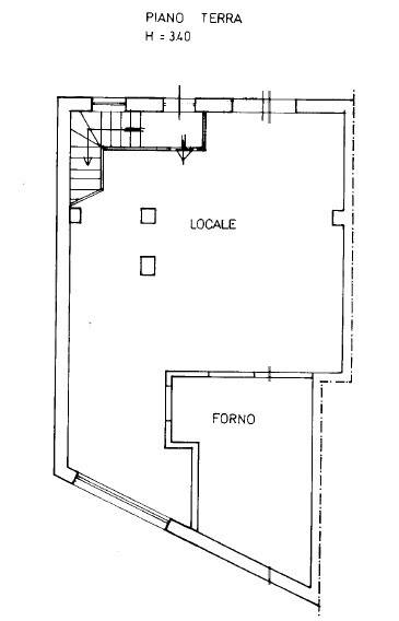
Situato nel comune di Marino (RM), in via Forni di Sant’Antonio da Padova, nel cuore del caratteristico centro storico, proponiamo in vendita un magazzino ad uso commerciale C/3.
Con una superficie totale di 170 mq di h 3,60 la soluzione è la fusione di due locali c/3 con bagno. Lo stato dell'edificio è da ristrutturare, offrendo ampie possibilità di personalizzazione e adattamento alle esigenze del futuro acquirente.
L'occupazione dell'immobile è attualmente libera, consentendo un rapido insediamento per attività commerciali di vario genere.
Marino è una località che garantisce un ottimo potenziale di clientela per qualsiasi attività commerciale si desideri avviare. L'immobile si trova in una zona ben servita da mezzi pubblici e con facile accesso alle principali vie di comunicazione.
euro 80.000
Informazioni generali
Accessori
Richiesta informazioni all'agenzia
Richiedi informazioni all'agenzia
