Villa in Via Kennedy, Snc in zona Frattocchie a Marino
vendita Villetta Trifamiliare Marino
INIZIAMO LE PRENOTAZIONI
Marino – Località Frattocchie Nuovo progetto edilizio di Ville di Nuova Costruzione Unifamiliari e Trifamiliari in via J.Kennedy, traversa di via del Divino Amore. La posizione è strategica per il raggiungimento di due arterie importanti quali via Ardeatina e Via Nettunense, inoltre è una zona residenziale adibita alla costruzione di ville, ideale per chi sceglie di vivere in un contesto esclusivo senza rinunciare al raggiungimento dei servizi in pochi minuti.
Grazie all’Architetto Alessio De Acetis, il futuro acquirente avrà la possibilità di essere supportato nel personalizzare le rifiniture e la suddivisione degli spazi interni, conciliando l’ equilibrio tra confort, risparmio energetico ed estetica. Tutti i materiali impiegati saranno top di gamma e tutte le ville saranno dotate di porta blindata, 3 moduli fotovoltaici per un totale di 1,2kw, finestre e portefinestre con sistema di apertura vasistras in pvc, videocitofono. Gli immobili godranno di un alto indice di prestazione energetica, grazie all' utilizzo delle più avanzate tecniche costruttive, con l'uso integrato di efficaci sistemi di coibentazione con moderni impianti tecnologici per il riscaldamento combinati con pannelli radianti a pavimento che prevedono un impianto a pompa di calore di primarie marche.
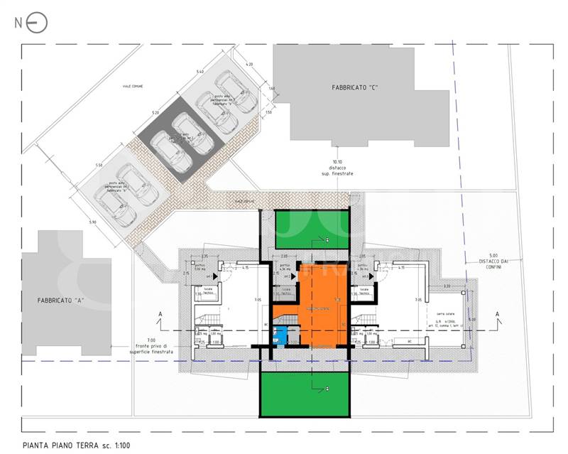
Proponiamo in questo annuncio la porzione centrale di trifamiliare con entrata indipendente e dislocata su 2 livelli residenziali.
Con una superficie commerciale di 120 mq la soluzione sarà ottimamente divisa tra la zona giorno e la zona notte. Al piano terra troveremo un ampio e luminoso Salone con Angolo Cottura, che godrà di luce naturale grazie alla porta finestra che dà sul giardino, disimpegno e Bagno di servizio per gli ospiti. Al piano primo è stata progettata una meravigliosa suite matrimoniale con cabina armadio e bagno interno, disimpegno, ulteriori 2 camere sa letto singole e Bagno con la doccia. Tutte le camere godranno di uno spazio esterno.
La villa godrà di un giardino parte verde e parte mattonato fronte e treto ideale per essere vissuto in compagnia durante la bella stagione e nei momenti di relax con un’ampia zona portico e locale tecnico.
Completano la proprietà due posti auto.
La consegna è prevista 18 mesi
Vi è inoltre la possibilità di valutare la permuta del vostro immobile e acquistare questa soluzione davvero unica.
Informazioni generali
Accessori
Richiesta informazioni all'agenzia
Richiedi informazioni all'agenzia
