Ufficio da ristrutturare a Portogruaro
vendita Ufficio Portogruaro
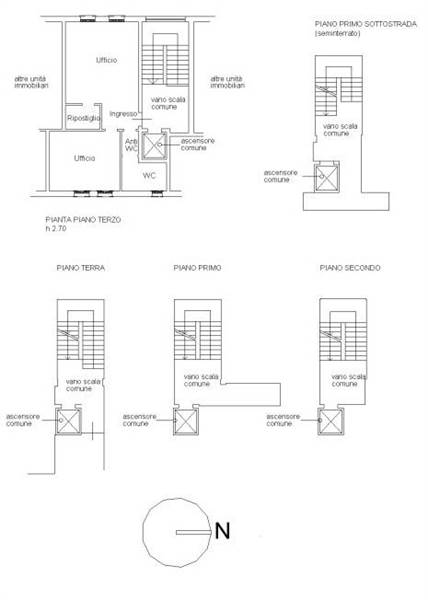
Un'opportunità di investimento eccezionale vicino al centro città e all'ospedale di Portogruaro (VE). Due uffici, per un totale di 150 mq, situati al terzo piano di un più ampio edificio a destinazione residenziale e commerciale. Il primo di 97 mq è composto da ingresso, quattro locali, servizio igienico e balcone mentre il secondo di 53 mq comprende due locali, un ripostiglio e servizio igienico. Le unità, che affacciano sullo stesso pianerottolo, sono accessibili tramite ascensore e comprendono tre cantine al piano interrato di circa 15 mq ciascuna, offrendo spazio per archiviazione o ulteriori possibilità. Attualmente utilizzati come uffici, questi spazi offrono un'interessante possibilità di conversione in unità abitative. Questa flessibilità e la posizione strategica rendono questi uffici un investimento ancora più interessante per una vasta gamma di professionisti e aziende.
