Albergo in nuova costruzione a Roma
4500 m2
113 vani
113 bagni
ascensore
€ 2.000.000
Albergo con mura a Roma
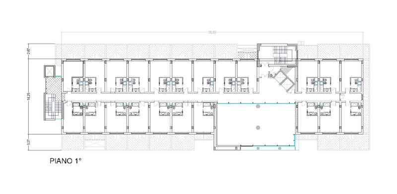
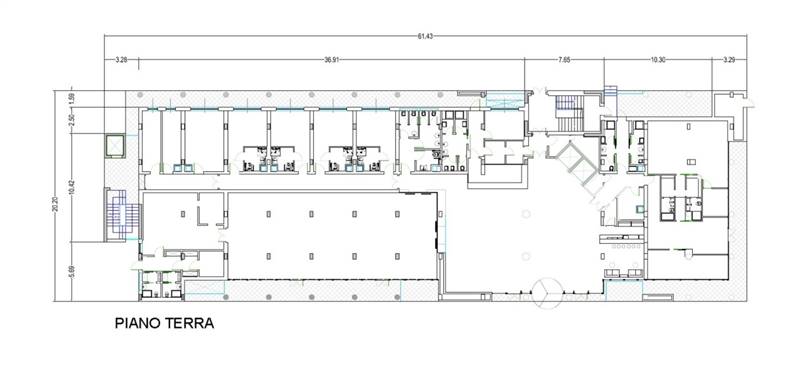
ROMA NORD - adiacente uscita autostradale Fiano Romano, Struttura a destinazione alberghiera disposta su 5 livelli fuori terra di recente realizzazione mancante ancora di rifiniture interne. Dispone di due corpi scala e tre ascensori. La superficie lorda è di circa mq 5000 oltre balconi, terrazzo solarium, vani tecnici e corte per parcheggi. Le camere, oltre 100, dispongono di bagni privati e terrazzini. Ottima opportunità di investimento. Vendita di mura a stato attuale. Rif. 6804 DiLeoImmobiliare...
Dove si trova
Informazioni generali
6804
4500 m2
113 locali
€ 2.000.000
Vendita
Albergo
Roma
Medio Signorile
2024
28/11/2024
Accessori
113
Terra, con ascensore
Nuova costruzione
Abitabile
si
si
Efficienza energetica
A
A
87 kwh/m3 anno
Planimetrie
Richiesta informazioni all'agenzia
Richiedi informazioni all'agenzia
Di Leo Immobiliare
via Pasubio 10 piano 2°
63074
San Benedetto del Tronto
(AP)
P.IVA: 01941740449
Cerca nel comune di Roma
Lista delle zone
- Infernetto/Malafede/Madonnetta a Roma
- Casilina/ Prenestina/ Centocelle/ Alessandrino
- Monte Sacro/ Talenti/ Vigne nuove
- Tuscolano/ Don Bosco/ Cinecittà
- Prati/ Delle Vittorie/ Borgo
- EUR (Europa)/ Laurentino/ Montagnola
- Centro Storico
- Nuovo Salario/ Prati Fiscali/ Colle Salario
- Boccea/ Torrevecchia/ Pineta Sacchetti
- S.Giovanni/ Esquilino/ San Lorenzo/
